2к квартира вул. Олександра Олеся 10

  • Подільський район вул. Олександра Олеся 10
  • Код: RF-3-237-064
  • Добавлено: 07.11.2025
  • Додати в обране
Тип ринку
Первинний ринок
Вулиця
вул. Олександра Олеся 10
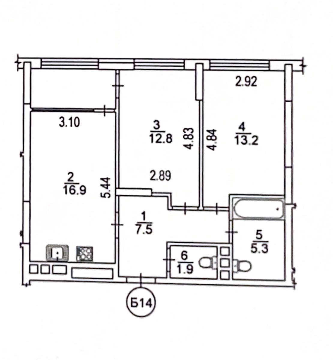
Кількість кімнат
2
Поверх
3 Поверх
Поверховість
26 поверховий будинок
Загальна площа
61 м2
Загальний стан
З ремонтом
Ціна:
40 000 грн.
951 USD
  • AXIS Real Estate
  • AXIS Real Estate
  • AXIS Real Estate
Опис об'єкту

ЖК Варшавський Плюс, 2 кімнатна квартира. Простора, сучасна квартира з якісним ремонтом, виконаним “для себе”. Усі меблі виготовлені під замовлення, з продуманим розташуванням для максимальної зручності. Квартира укомплектована сучасною технікою: три кондиціонери, пральна машина з сушкою, посудомийна машина, вбудований холодильник, духова шафа, варильна поверхня, мікрохвильова піч, бойлер та телевізор. Кухня об’єднана з вітальнею, плита — електрична (без газу), гаряча вода — централізована, опалення автономне. У квартирі два роздільні санвузли (душ/туалет), є балкон та металопластикові вікна. За потреби орендарів у другу спальню може бути доставлено ліжко чи додаткові меблі. Встановлені всі лічильники, телевізор, холодильник, шафа, пральна машина, кондиціонери, посудомийна машина, душова кабіна. Будинок новий — побудований у 2023 році, з охороною, консьєржем, автопарковкою та коморами. Забезпечено безбар’єрний вхід на рівні землі. Під час відключень електроенергії будинок повністю функціонує — працюють вода, опалення та ліфт завдяки генератору. На території є чисте підвальне сховище, приватний дитячий садочок, спортивний зал, поштомат “Нової пошти”, закритий дитячий і спортивний майданчик, а також приміщення для зберігання велосипедів. Район із розвиненою інфраструктурою — поруч ТРЦ “Ретровіль”, кав’ярні, ресторани, салони краси, два спортивні клуби (ЕБШ, Графіт), школи та дитячі садочки у пішій доступності. Поруч з будинком — сучасний громадський простір без автомобілів, з парковою зоною, майданчиками для футболу, тенісу та занять спортом. Зручне транспортне сполучення — зупинка громадського транспорту за 5 хвилин пішки. Є наземні паркомісця та можливість орендувати місце у підземному паркінгу.

Додаткова інформація

Схожі пропозиції