2к квартира вул. Лебедєва-Кумача 5

  • Солом'янський район вул. Лебедєва-Кумача 5
  • Код: SF-3-300-150
  • Добавлено: 26.05.2026
  • Додати в обране
Тип ринку
Вторинний ринок
Вулиця
вул. Лебедєва-Кумача 5
Кількість кімнат
2
Поверх
2 Поверх
Поверховість
16 поверховий будинок
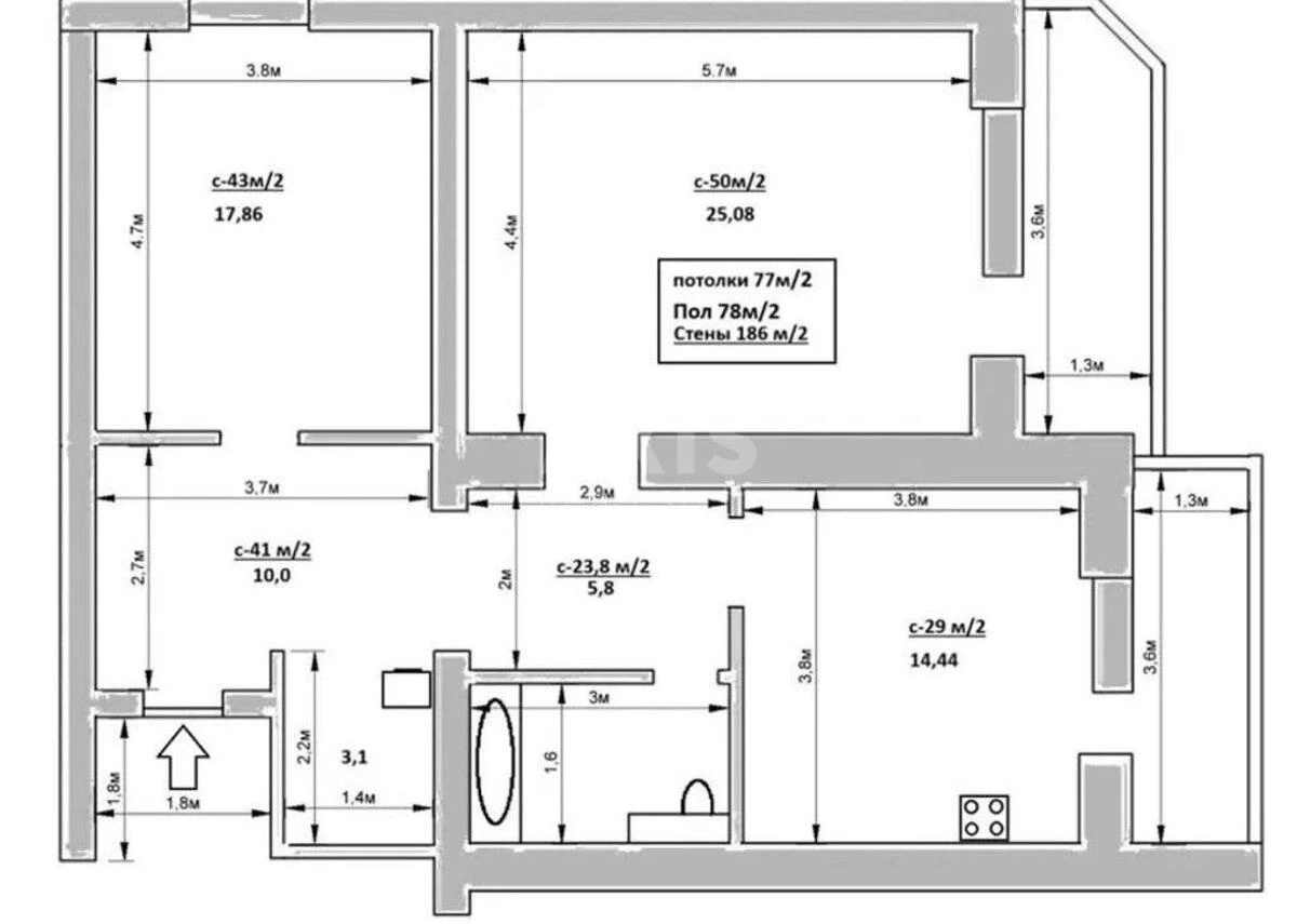
Загальна площа
87 м2
Загальний стан
З ремонтом
Ціна:
6 150 275 грн.
139 000 USD
Опис об'єкту

2 кімнатнак вартира. Простора квартира з капітальним ремонтом, у якій ще ніхто не проживав. Планування включає дві окремі спальні, дві лоджії, один санвузол та окрему пральню/гардеробну. Квартира частково мебльована, що дає можливість облаштувати простір під власні потреби. Вікна виходять на південно-східну сторону, тому в квартирі багато природного світла. Цегляний будинок формату «термодім» із додатковим утепленням та звукоізоляцією зсередини. Передбачено відеоспостереження для безпеки мешканців. Комунальні платежі невисокі, завжди є місце для паркування. Затишний внутрішній двір із розвиненою інфраструктурою: поруч сучасна державна школа, дитячий садок та центри раннього розвитку. У дворі знаходиться Sport Life з басейном. У пішій доступності супермаркети, аптеки, ринок. Зручне транспортне сполучення — поруч швидкісний трамвай.

Схожі пропозиції