Продаж

Усі фото (12)
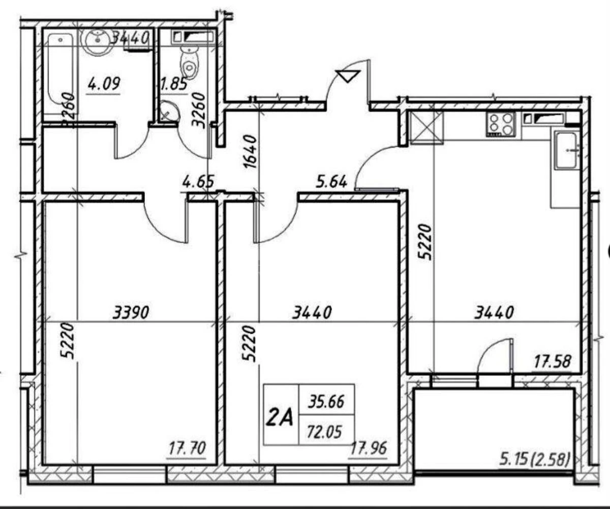
2к квартира вул. Коноплянська 22
- Додати в обране
-
Подiлитись посиланням
Тип ринку
Первинний ринок
Вулиця
вул. Коноплянська 22
Кількість кімнат
2
Поверх
14 Поверх
Поверховість
25 поверховий будинок
Загальна площа
72 м2
Загальний стан
З ремонтом
Ціна:
3 339 430 грн.
80 700 USD
Опис об'єкту
ЖК Navigator 2, 2 кімнатна квартира. Квартира з внутрішньою обробкою і усім необхідним для життя: металеві вхідні двері, металопластикові вікна Rehau, міжкімнатні двері з сучасною фурнітурою, повний комплект сантехнічного устаткування. Радіатори, розетки і вимикачі, шпалери з урахуванням характеристики приміщення і багети на стелі, ліноліум і пластикові плінтуси.
Додаткова інформація