
2к квартира вул. Янгеля Академіка 2А
- Додати в обране
-
Подiлитись посиланням
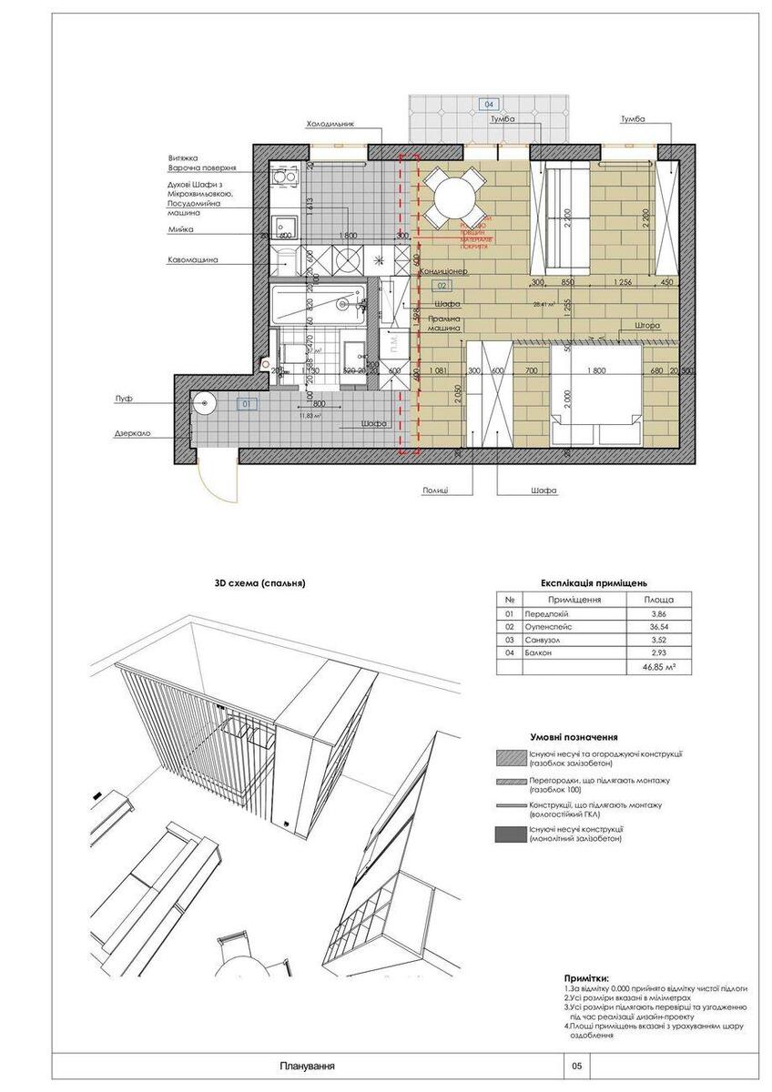
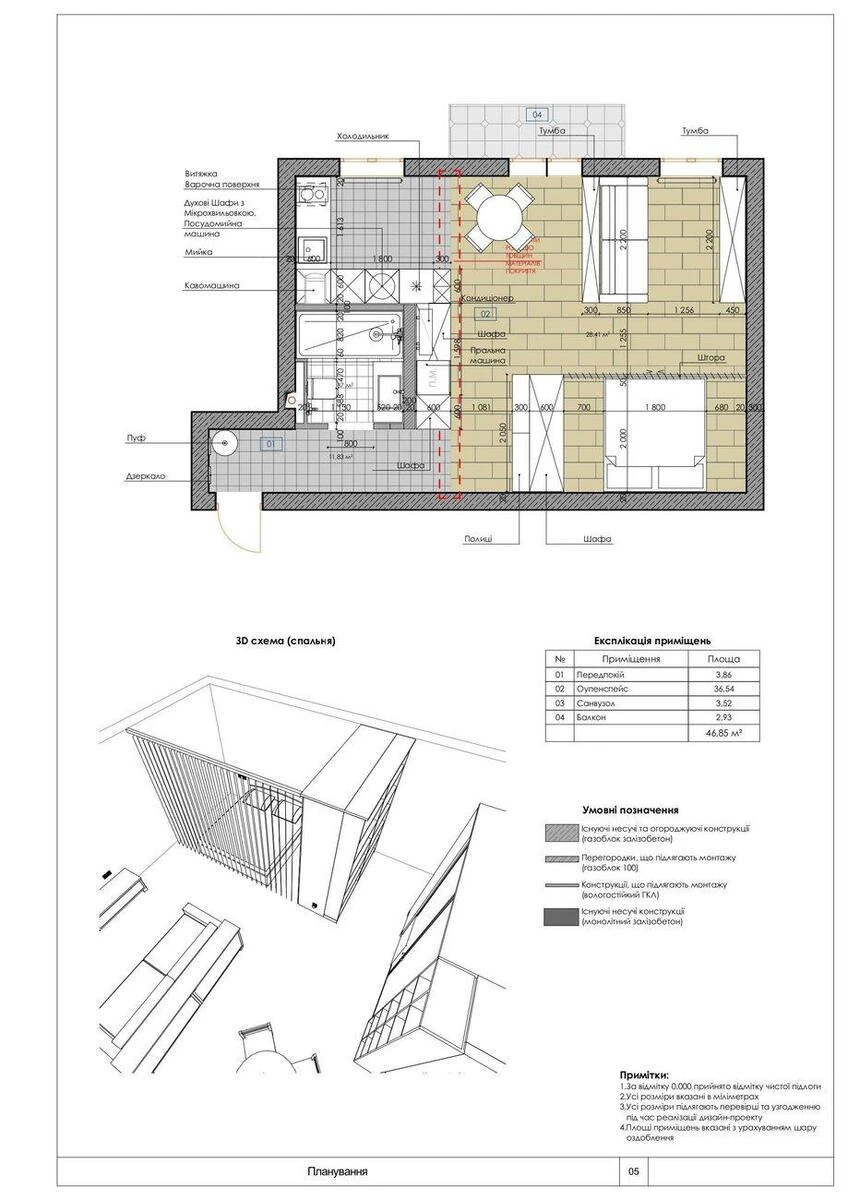
2 кімнатна квартира. З продуманим авторським ремонтом і високоякісними матеріалами: іспанська плитка, тепла підлога, ламінат, сучасна сантехніка. Планування передбачає комфортне розташування меблів згідно дизайн-проекту. Частково оснащена побутовою технікою: пральна машина, холодильник, мікрохвильова піч. Встановлено підігрів підлоги та сигналізацію, підключено кабельне та цифрове ТБ, швидкісний інтернет і Wi-Fi. Будинок обладнаний централізованим опаленням, доглянутий та забезпечує безпеку та комфорт для мешканців. Територія та оточення забезпечують всі умови для життя: поруч парк КПІ, дитячий садочок у дворі, торгові центри та супермаркети. До станції метро «Шулявська» та зупинки швидкісного трамваю всього 7 хвилин пішки.