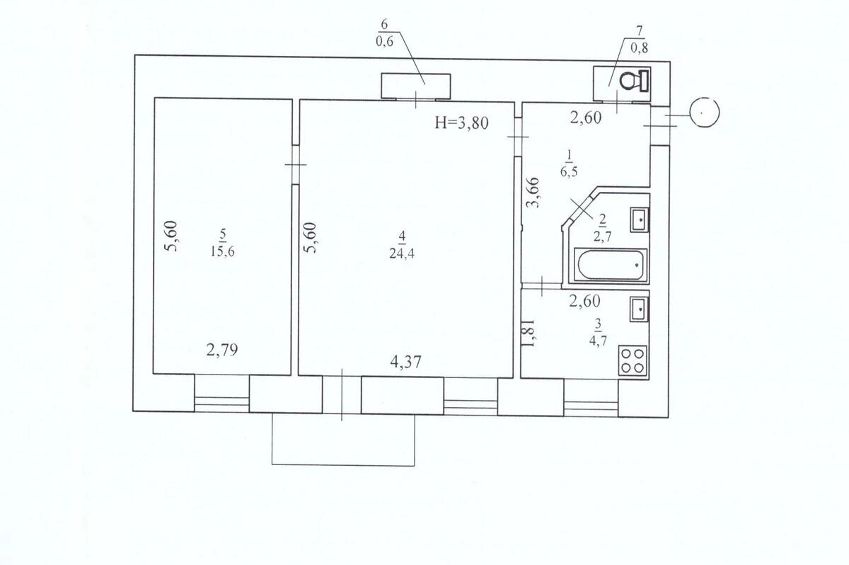
2к квартира вул. Федорова Івана 10

  • Голосіївський район вул. Федорова Івана 10
  • Код: SF-3-253-965
  • Добавлено: 31.01.2026
  • Додати в обране
Тип ринку
Вторинний ринок
Вулиця
вул. Федорова Івана 10
Кількість кімнат
2
Поверх
3 Поверх
Поверховість
5 поверховий будинок
Загальна площа
56 м2
Загальний стан
З ремонтом
Ціна:
4 316 432 грн.
100 800 USD
Опис об'єкту

2 кімнатна квартира. З роздільним плануванням і якісним євроремонтом. Санвузол також роздільний. У помешканні повноцінний комплект меблів та необхідна побутова техніка: холодильник, варильна панель, мікрохвильова піч, пральна машина. Є швидкісний інтернет і Wi-Fi. Для комфорту встановлені кондиціонер, сигналізація, відеоспостереження, облаштована гардеробна, а також є балкон/лоджія та сучасна душова кабіна. Конструкція підлоги між поверхами виконана з багатошарового природного та плитного матеріалу: ковролін, спінений поліетилен, ДСП, суха стругана дошка 50+ мм, дерев’яні лаги та повітряна прошарка 250–300 мм. За потреби дерев’яні перекриття можна замінити, не зачіпаючи сусідів. Будинок підтримується у доглянутому стані, зручний для проживання та підключений до централізованого опалення. Вхідні зони доглянуті, атмосфера спокійна та домашня. Будинок розташований у зручному районі з усією необхідною інфраструктурою. Територія навколо спокійна, підходить для тих, хто шукає комфорт у поєднанні з хорошою транспортною доступністю та міськими зручностями.

Схожі пропозиції