Продаж

Усі фото (4)
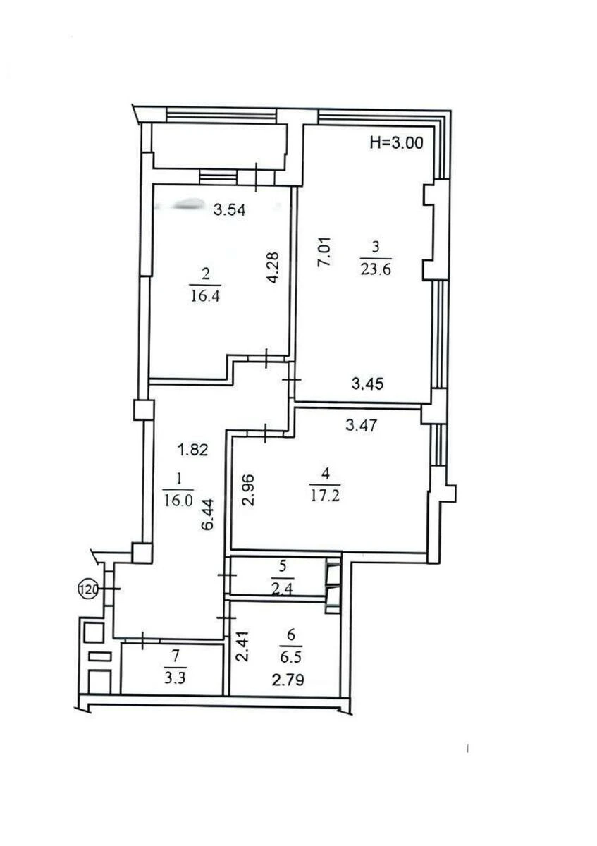
2к квартира вул. Антоновича 44
- Додати в обране
-
Подiлитись посиланням
Тип ринку
Первинний ринок
Вулиця
вул. Антоновича 44
Кількість кімнат
2
Поверх
15 Поверх
Поверховість
24 поверховий будинок
Загальна площа
89 м2
Загальний стан
Без ремонту
Ціна:
14 821 899 грн.
356 000 USD
Опис об'єкту
ЖК Chicago Central House, 2 кімнатна квартира. Стан квартири - незавершений ремонт. Повноцінна 2 кімнатна квартира, планування кімнат роздільне. Висота стелі 3 м. Суміжний санвузол. Вікна виходять на центр міста. Ліфт працює без світла. Будинок введено в експлуатацію - бетонно монолітний, побудований в 2019 році.
Додаткова інформація