2к квартира вул. Андрія Верхогляда 18

  • Печерський район вул. Андрія Верхогляда 18
  • Код: SF-3-295-944
  • Добавлено: 24.03.2026
  • Додати в обране
Тип ринку
Первинний ринок
Вулиця
вул. Андрія Верхогляда 18
Кількість кімнат
2
Поверх
17 Поверх
Поверховість
30 поверховий будинок
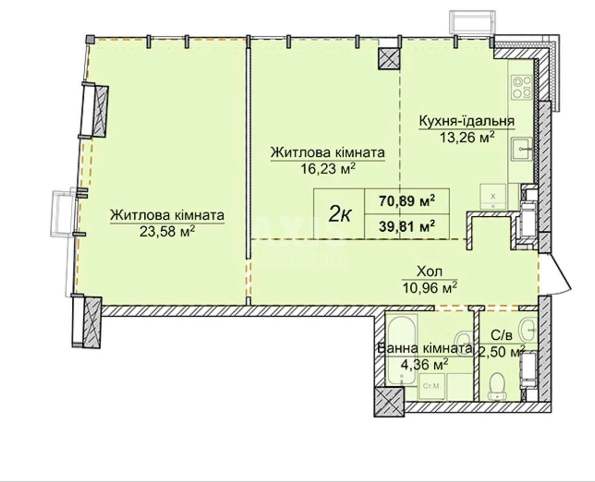
Загальна площа
70 м2
Загальний стан
Без ремонту
Ціна:
8 461 616 грн.
192 840 USD
Опис об'єкту

ЖК Новопечерські Липки, 2 кімнатна квартира. Квартира в розвиненому районі з гарною інфраструктурою. ЖК «Новопечерські Липки» класу Бізнес , що означає підвищений комфорт, безпеку, хорошу інфраструктуру у престижному районі у поєднанні з тишею та затишком. Тут є все, що потрібно для комфорту: власні навчальні заклади, паркові зони, паркінг, магазини та спортивні клуби (один із яких з відкритим басейном). Оскільки житловий комплекс відноситься до преміум класу, його технічне обслуговування знаходиться на найвищому рівні.

Схожі пропозиції