2к квартира пр-т Європейського Союзу 1

  • Подільський район пр-т Європейського Союзу 1
  • Код: SF-3-236-164
  • Добавлено: 05.11.2025
  • Додати в обране
Тип ринку
Первинний ринок
Вулиця
пр-т Європейського Союзу 1
Кількість кімнат
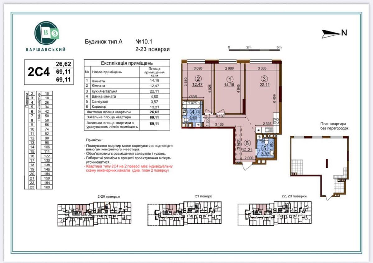
2
Поверх
13 Поверх
Поверховість
25 поверховий будинок
Загальна площа
70 м2
Загальний стан
Без ремонту
Ціна:
3 977 618 грн.
94 000 USD
  • AXIS Real Estate
  • AXIS Real Estate
  • AXIS Real Estate
Опис об'єкту

ЖК Варшавський 3, 2 кімнатна квартира. Будинок комфорт класу. Презентабельна вхідна група, консьєрж, охорона, відео нагляд, закриті дитячі. Світла, простора квартира з функціональним плануванням: три окремі кімнати, простора кухня-вітальня, два санвузла. Інфраструктура комплексу включає дитячі та спортивні майданчики, зони відпочинку, а також близькість до торговельних центрів і зручну транспортну розв'язку.

Додаткова інформація

Схожі пропозиції