2к квартира бул. Миколи Міхновського 13А

  • Печерський район бул. Миколи Міхновського 13А
  • Код: SF-3-297-492
  • Добавлено: 27.03.2026
  • Додати в обране
Тип ринку
Первинний ринок
Вулиця
бул. Миколи Міхновського 13А
Кількість кімнат
2
Поверх
23 Поверх
Поверховість
25 поверховий будинок
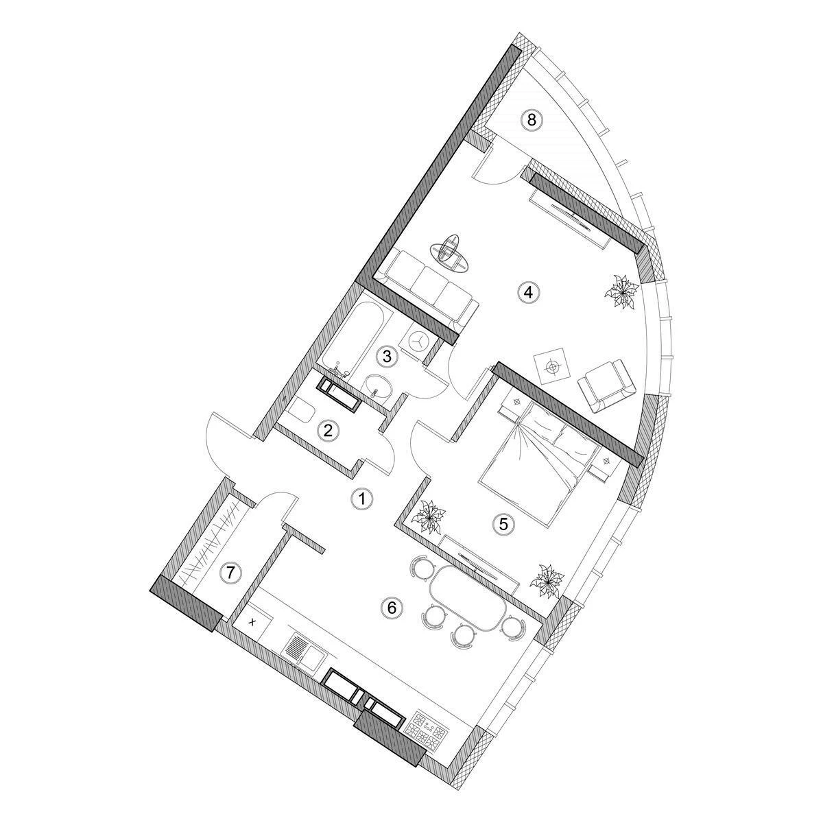
Загальна площа
63 м2
Загальний стан
Без ремонту
Ціна:
8 119 285 грн.
185 000 USD
Опис об'єкту

ЖК Aria, 2 кімнатна квартира. Ідеальне планування для комфортного проживання і супер зручне для здачу в оренду. ЖК Aria - побудований і готовий будинок бізнес класу в Печерському районі. Якісні і сучасні матеріали використані при будівництві ЖК Арія. Гарна локація.

Схожі пропозиції