2к квартира бул. Дружби Народів 13А

  • Печерський район бул. Миколи Міхновського 13А
  • Код: SF-3-159-792
  • Добавлено: 27.06.2025
  • Додати в обране
Тип ринку
Первинний ринок
Вулиця
бул. Миколи Міхновського 13А
Кількість кімнат
2
Поверх
6 Поверх
Поверховість
25 поверховий будинок
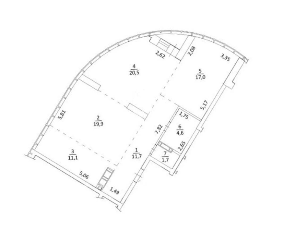
Загальна площа
81 м2
Загальний стан
Без ремонту
Ціна:
6 925 730 грн.
165 000 USD
  • AXIS Real Estate
  • AXIS Real Estate
  • AXIS Real Estate
Опис об'єкту

ЖК Aria, 2 кімнатна квартира. Особливість планування - це можливість поміняти місцями кухню і кімнати. В квартирі 2 точки підведення води і каналізації. На сьогодні це найбільша кухня в 2 кімнатних квартирах в ЖК Арія - 34 м2. Ідеальне планування для комфортного проживання і супер зручне для здачу в оренду. Також підійде під офіс закритого типу.

Додаткова інформація

Схожі пропозиції