1к квартира 7В

  • Печерський район Фортечний тупик 7В
  • Код: SF-3-300-518
  • Добавлено: 14.04.2026
  • Додати в обране
Тип ринку
Первинний ринок
Вулиця
Фортечний тупик 7В
Кількість кімнат
1
Поверх
2 Поверх
Поверховість
25 поверховий будинок
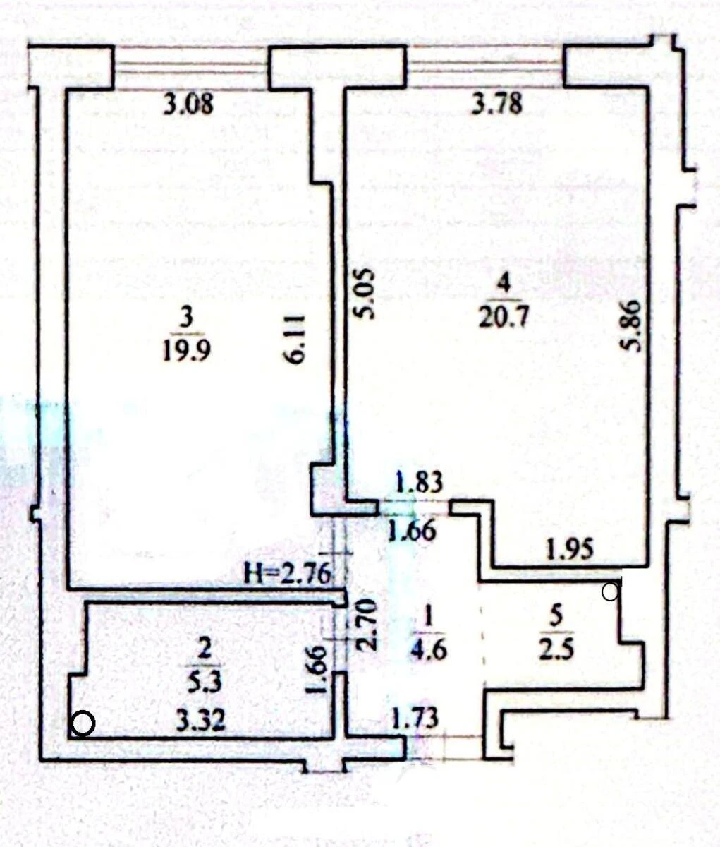
Загальна площа
53 м2
Загальний стан
Без ремонту
Ціна:
5 690 959 грн.
131 000 USD
Опис об'єкту

ЖК Greenville на Печерську, 1 кімнатна квартира. 2 поверх, площа 53м2 - квартира має вдале планування, два стояка каналізації. Зроблена стяжка та чорнова штукатурка. Вікна на схід, сонце з ранку. Дуже світла та тепла. Є дизайн проект, і покажемо як можна реалізувати ремонт, бо робили вже ремонт в такій само квартирі поверхом вище. У будинку є триповерховий підземний паркінг, можна купити машино-місце по $30-35тис.

Схожі пропозиції