
1к квартира вул. Живописна 3
- Додати в обране
-
Подiлитись посиланням
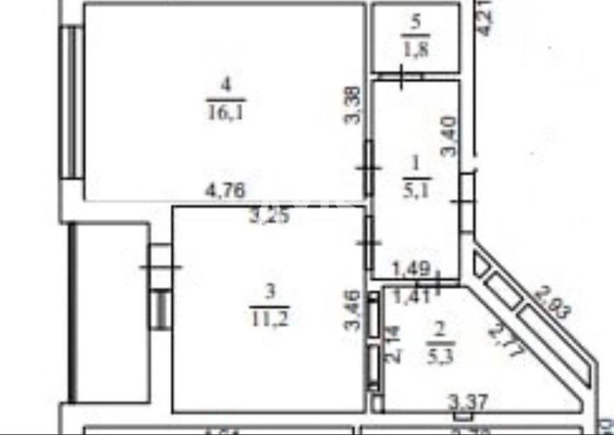
ЖК Eco Dream, 1 кімнатна квартира. Простора квартира з лазерною стяжкою підлоги, гідроізоляцією у санвузлі та розводкою опалення по підлозі, включаючи встановлення радіаторів. Вікна обладнані енергоефективними системами з 2-камерними склопакетами та 5-камерними металопластиковими профілями марки Rehau. Балкони та лоджії засклені на всю висоту, що дозволяє отримати додаткове природне освітлення в кімнатах. Висота стель у квартирах складає 2,7 м, що додає простору та легкості в інтер’єрі. Квартира оснащена необхідними лічильниками: електрики, холодної води та тепла, які встановлені в МЗК. Для зручності мешканців є оптоволоконний інтернет, що незалежний від електропостачання. Всі необхідні умови для комфортного проживання передбачені: бойлер, термоголовки для радіаторів та віконні ручки. Крім того, покупець отримує 2 комплекти ключів від вхідних дверей. Комплекс розташований в зручному місці поруч з метро Житомирська, що забезпечує швидкий доступ до всіх важливих точок міста. Оточення включає парк, озеро та сосновий ліс, що створює неповторну атмосферу спокою та гармонії. На території комплексу є дитячі та спортивні майданчики, а закритий двір гарантує безпеку та комфорт. У комплексі також передбачені всі вигоди для активного та комфортного життя: близькість до ТЦ, дитячих садків, шкіл і зручна транспортна розв'язка. Це чудовий вибір для тих, хто шукає зручне місце для життя з вигідними умовами.