1к квартира вул. Руданського Степана 9А

  • Шевченківський район вул. Руданського Степана 9А
  • Код: SF-3-266-458
  • Добавлено: 27.02.2026
  • Додати в обране
Тип ринку
Первинний ринок
Вулиця
вул. Руданського Степана 9А
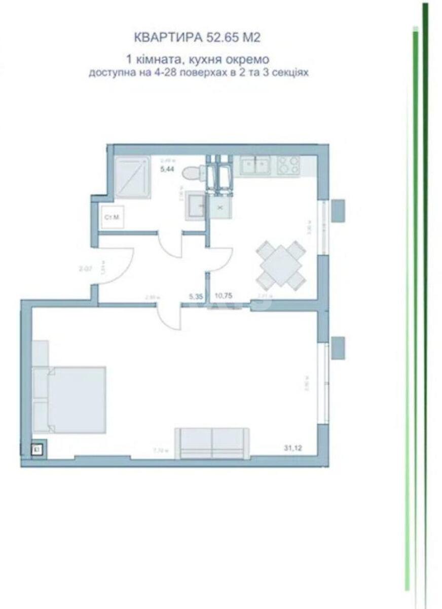
Кількість кімнат
1
Поверх
17 Поверх
Поверховість
30 поверховий будинок
Загальна площа
52 м2
Загальний стан
Без ремонту
Ціна:
2 184 680 грн.
50 500 USD
Опис об'єкту

ЖК Park Hills, 1 кімнатна квартира. У стані від забудовника з готовою стяжкою підлоги та розведеними комунікаціями. Встановлені якісні склопакети, фірмові броньовані вхідні двері та радіатори опалення. Усі інженерні системи підключені до міських централізованих мереж — опалення та водопостачання. Такий стан дозволяє реалізувати індивідуальний дизайн-проєкт без демонтажу та зайвих витрат. Будинок зведений за монолітно-каркасною технологією. Стіни виконані з газоблоку з утепленням мінеральною ватою та пінопластом, фасади оздоблені мінеральною штукатуркою. Передбачене централізоване опалення і водопостачання. Для мешканців доступні наземний та підземний паркінги, для гостей — наземна парковка. Територія комплексу має вільний доступ та облаштовані зони відпочинку. Локація одна з найкращих у районі — поруч посольство США, кілька парків, річка Сирець, озера та «Дитяча залізниця». Розвинена соціальна інфраструктура: магазини, лікарні, дитячі садки, школи, салони краси та інші сервіси поруч із будинком. Зручна транспортна доступність — до метро Берестейська близько 15 хвилин пішки, до метро Сирець — приблизно 12 хвилин.

Схожі пропозиції