1к квартира вул. Родини Крістерів 20

  • Подільський район вул. Родини Крістерів 20
  • Код: RF-3-256-781
  • Добавлено: 18.12.2025
  • Додати в обране
Тип ринку
Первинний ринок
Вулиця
вул. Родини Крістерів 20
Кількість кімнат
1
Поверх
19 Поверх
Поверховість
25 поверховий будинок
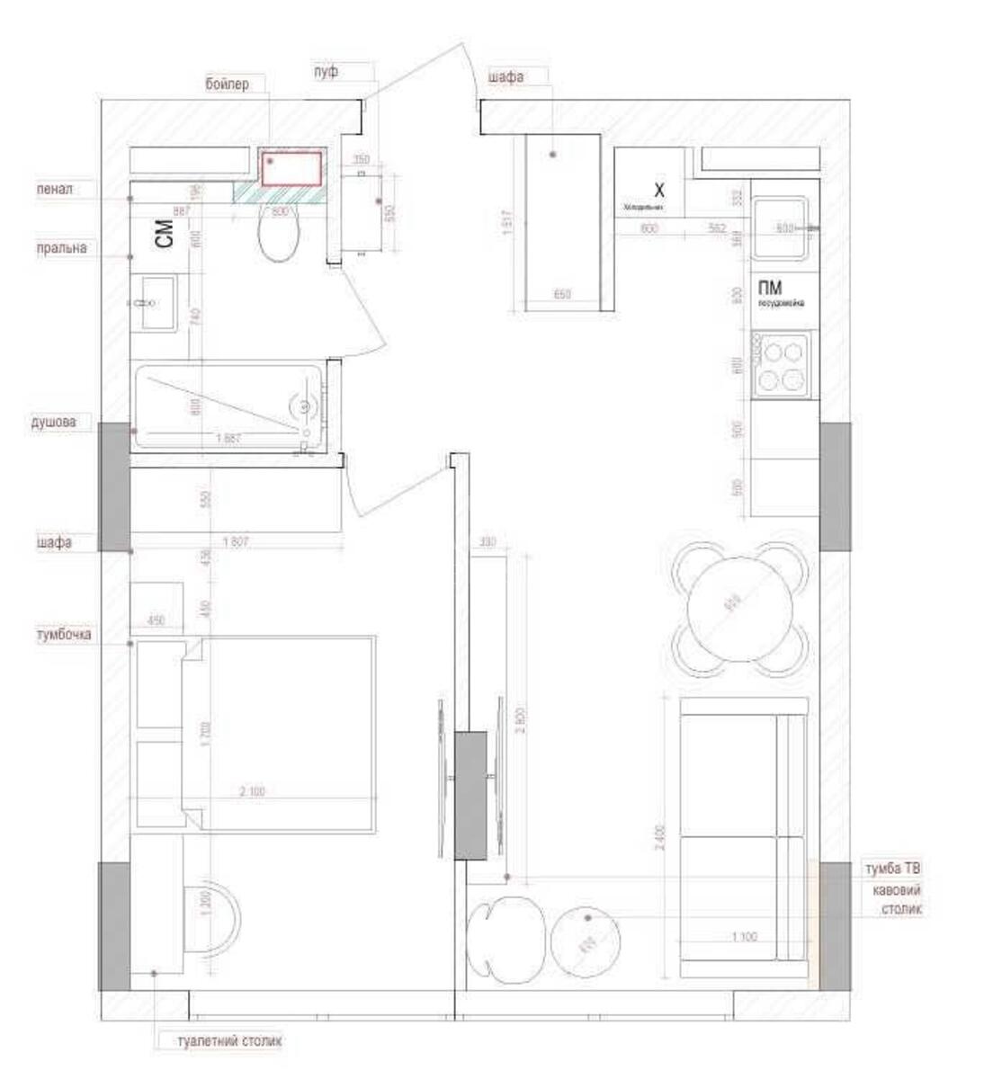
Загальна площа
45 м2
Загальний стан
З ремонтом
Ціна:
25 500 грн.
602 USD
Опис об'єкту

ЖК Варшавський 2, 1 кімнатна квартира. Новий ремонт. Присутня вся побутова техніка: кондиціонер, телевізор, посудомийна машина, плита, пральна машина, духовка, тепла підлога Загальна площа: 45 кв.м. Мебльована. У комплексі є пішохідні алеї, велосипедні доріжки, дитячі майданчики, спортивні майданчики та зелена територія.

Схожі пропозиції