Продаж

Усі фото (5)
1к квартира вул. Михайла Бойчука 19А
- Додати в обране
-
Подiлитись посиланням
Тип ринку
Первинний ринок
Вулиця
вул. Михайла Бойчука 19А
Кількість кімнат
1
Поверх
10 Поверх
Поверховість
11 поверховий будинок
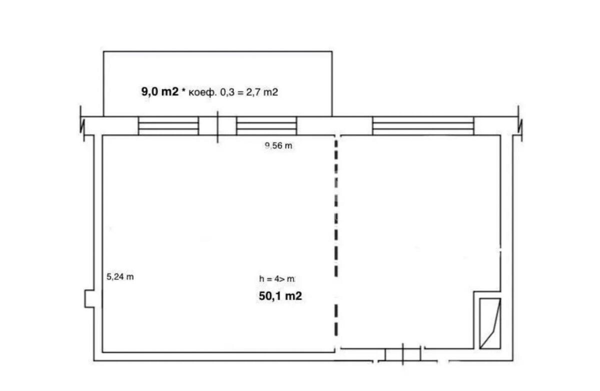
Загальна площа
50 м2
Загальний стан
Без ремонту
Ціна:
5 263 460 грн.
126 000 USD
Опис об'єкту
ЖК «Печерська Плаза», 1 кімнатна квартира. Раціональне планування з можливістю індивідуального зонування та великою терасою з панорамним видом на місто. Висота стель — 4,2 м, що створює відчуття простору та наповнює оселю світлом. Будинок з червоної цегли забезпечує теплоізоляцію, тишу та надійність. 10-й поверх — оптимальне поєднання приватності та відкритих краєвидів.
Додаткова інформація