1к квартира вул. Липи Юрія 6

  • Дніпровський район вул. Липи Юрія 6
  • Код: SF-3-307-283
  • Добавлено: 21.04.2026
  • Додати в обране
Тип ринку
Вторинний ринок
Вулиця
вул. Липи Юрія 6
Кількість кімнат
1
Поверх
3 Поверх
Поверховість
9 поверховий будинок
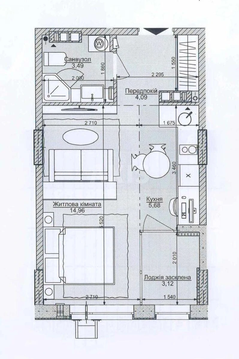
Загальна площа
31 м2
Загальний стан
Без ремонту
Ціна:
2 462 410 грн.
56 000 USD
Опис об'єкту

ЖК Комфорт Таун, 1 кімнатна квартира. Студія з роздільним санвузлом у стані після будівельників — ідеальний варіант для реалізації власного дизайну. Виконана під чистову обробку: рівна стяжка підлоги та підготовлені стіни дозволяють швидко розпочати ремонт без додаткових витрат на базові роботи. У квартирі встановлені панорамні вікна, що забезпечують багато природного світла та відчуття простору. Опалення централізоване, електроенергія та холодна вода обліковуються за індивідуальними лічильниками, підігрів води передбачений від бойлера. Завдяки якісним матеріалам будівництва та утепленню будинку — комунальні витрати залишаються на помірному рівні. Квартира без меблів і техніки — повна свобода для облаштування під власні потреби. Документи готові до угоди, продаж від власника без комісії. Сучасний будинок із централізованим опаленням, обладнаний ліфтом, з якісними інженерними комунікаціями та хорошою теплоізоляцією. Територія під охороною, передбачено гостьовий паркінг. Житловий комплекс закритого типу з цілодобовою охороною та продуманою інфраструктурою. Простір адаптований для маломобільних мешканців. У пішій доступності супермаркети «Сільпо» та «Novus», кафе, ресторани, аптеки, медичні заклади, зокрема клініка «Добробут», а також сучасні школи та дитячі садки. На території комплексу є багаторівневі паркінги та достатня кількість гостьових місць для авто.

Схожі пропозиції