1к квартира вул. Драгоманова 2А

  • Дарницький район вул. Драгоманова 2А
  • Код: SF-3-250-232
  • Добавлено: 25.02.2026
  • Додати в обране
Тип ринку
Вторинний ринок
Вулиця
вул. Драгоманова 2А
Кількість кімнат
1
Поверх
13 Поверх
Поверховість
25 поверховий будинок
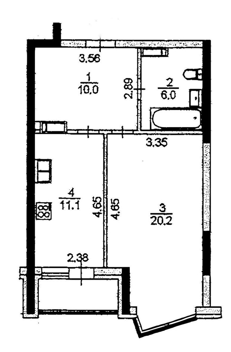
Загальна площа
51 м2
Загальний стан
З ремонтом
Ціна:
3 681 331 грн.
85 000 USD
Опис об'єкту

1 кімнатна квартира. Затишна та продумана квартира з роздільним плануванням та якісним євроремонтом. Просторий передпокій площею 10 м² має окрему гардеробну кімнату. Світла кухня-студія 20,2 м² обладнана вбудованою німецькою технікою, варильною панеллю, духовою шафою, холодильником, мікрохвильовкою, телевізором, музичною системою, кондиціонером та зручним євродиваном. Панорамні вікна забезпечують багато світла. Спальня площею 11,1 м² має двоспальне ліжко, шафу-купе та вихід на балкон. Ванна кімната 6 м² виконана з імпортної плитки, оснащена сучасною сантехнікою, душовою кабіною, ванною, бойлером та пральною машиною. На підлозі — німецький ламінат. Установлено індивідуальні лічильники на воду, електроенергію та опалення. Є телевізор, швидкісний інтернет, кабельне та цифрове ТБ. Будинок обладнаний автономним електрогенератором: під час вимкнення світла працюють ліфти — три пасажирські та один вантажний, зберігається водопостачання та опалення. У під’їзді цілодобовий консʼєрж, відеоспостереження, контрольований доступ. Подвійні металеві двері забезпечують додаткову безпеку. Передбачено пожежну сигналізацію, гостьовий паркінг, панорамні вікна. Територія комплексу має спортивний та дитячий майданчики. Будинок розташований у районі з повною інфраструктурою. Поруч Ашан із великою парковкою, АТБ, численні кафе, школи, дитячі садки, зупинки громадського транспорту. Для відпочинку за кілька хвилин — озеро Сонячне та зелена зона навколо нього. Зручна транспортна розв’язка: поруч метро Позняки та Харківська, а також швидкий виїзд на Дарницький міст.

Схожі пропозиції