1к квартира шосе Столичне 1Б

  • Голосіївський район шосе Столичне 1Б
  • Код: SF-3-298-801
  • Добавлено: 31.03.2026
  • Додати в обране
Тип ринку
Первинний ринок
Вулиця
шосе Столичне 1Б
Кількість кімнат
1
Поверх
18 Поверх
Поверховість
26 поверховий будинок
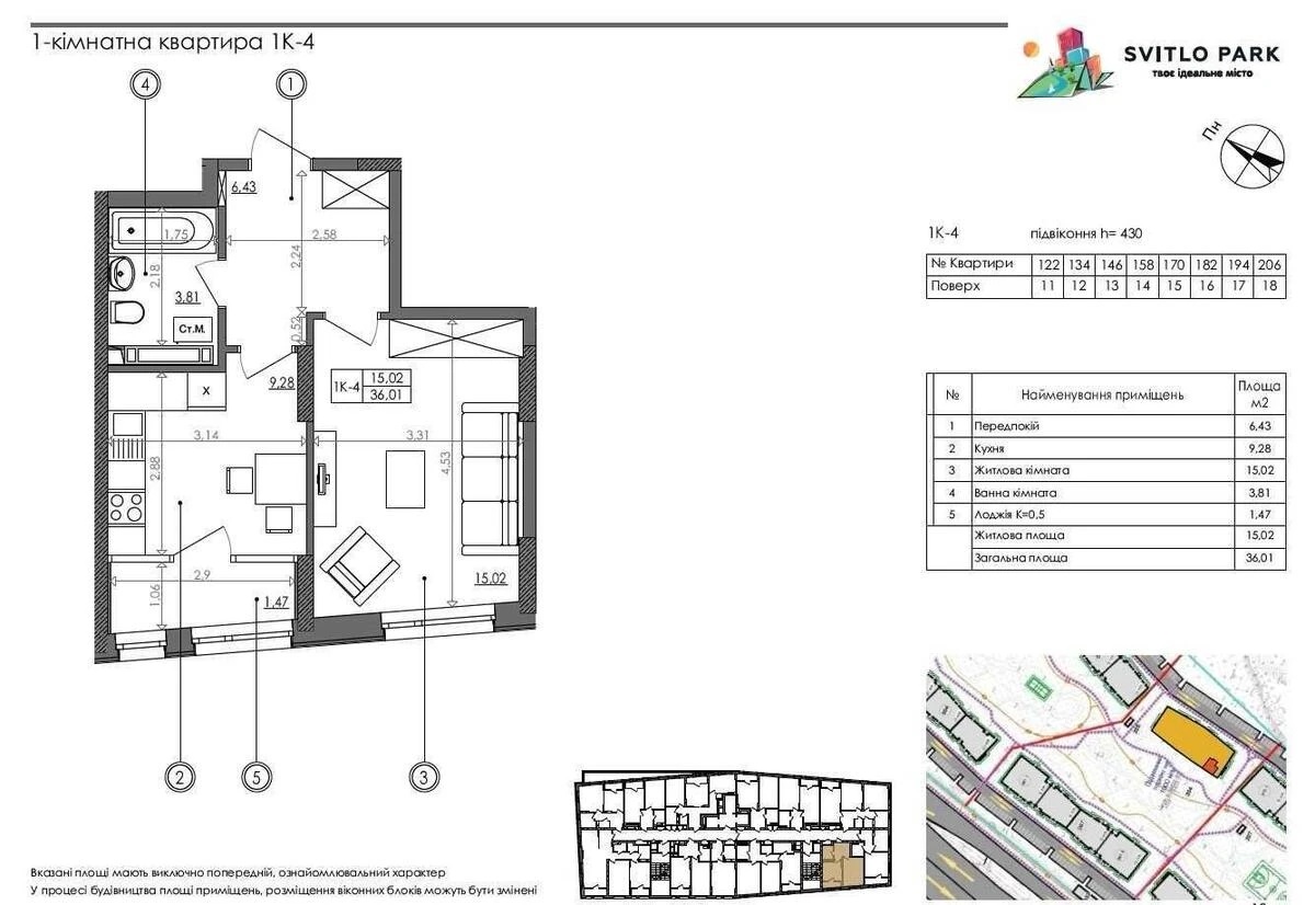
Загальна площа
36 м2
Загальний стан
Без ремонту
Ціна:
2 412 345 грн.
55 000 USD
Опис об'єкту

ЖК Svitlo Park, 1 кімнатна квартира. Квартира має функціональне планування. Кухня з виходом на лоджію, вмістка спальна кімната з панорамними вікнами -15 м2 та коридор з нішею під шафу-купе . Стан - після будівельників. Виконані всі чорнові роботи. Вікна засклені, встановлені вхідні двері - металеві, надійні та стильні, не потребуютьь заміни. Виконана стяжка підлоги під лазер, під стяжкою розведено водопостачання ,опалення, підключено радіатори з терморегуляторами. В комплексі передбачена своя інфраструктура : пропускна система цілодобової охорони, магазини продуктові, аптеки, спортивний клуб, ресторан, дитячі садочки та державна школа, медичний заклад; зона відпочинку з дітьми, прогулянкова зона, паркінг підземний та гостьовий.

Схожі пропозиції