1к квартира пров. Балтійський 23

  • Оболонський район пров. Балтійський 23
  • Код: SF-3-249-944
  • Добавлено: 29.05.2026
  • Додати в обране
Тип ринку
Первинний ринок
Вулиця
пров. Балтійський 23
Кількість кімнат
1
Поверх
23 Поверх
Поверховість
25 поверховий будинок
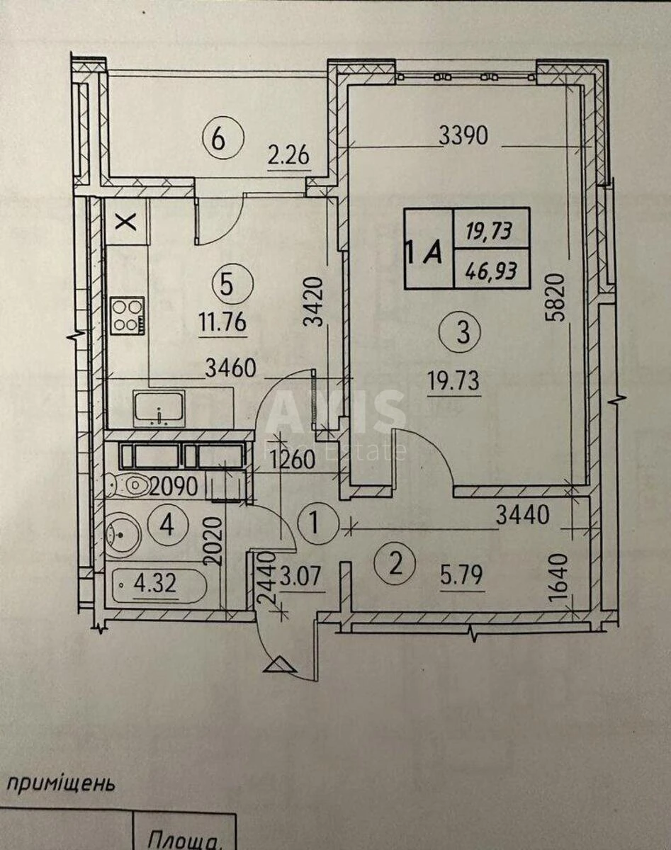
Загальна площа
46 м2
Загальний стан
Без ремонту
Ціна:
2 568 789 грн.
58 000 USD
Опис об'єкту

ЖК Navigator, 1 кімнатна квартира.Має доглянутий стан і продумане внутрішнє оздоблення: встановлені м/п вікна, якісні броньовані двері, зовнішнє утеплення, мідна електропроводка та всі необхідні лічильники. Висота стелі становить 3 метри, стіни та стеля оздоблені шпалерами. На підлозі — лінолеум. Санвузол суміжний, обладнаний сучасною сантехнікою. Є панорамні вікна з чудовим природним освітленням, а також балкон, що додає простору та можливості облаштувати зону відпочинку. Будинок новий, із центральним опаленням та централізованим підігрівом води. Передбачено три ліфти — пасажирські та вантажний, що забезпечують швидкий і комфортний доступ на будь-який поверх. Фасадна система будинку спроєктована з урахуванням термоізоляції, захисту від вітру та сучасної вентиляції, що підтримує енергоефективність і комфорт мешканців. Вхід до укриття безперешкодний, на рівні землі, що гарантує безпеку в разі необхідності. Територія житлового комплексу добре спроєктована для активного та зручного життя. Для дітей облаштовано безпечний майданчик у внутрішньому дворі. Є зона для занять спортом, наземний паркінг для авто та окрема велопарковка. Поблизу розташована вся необхідна міська інфраструктура: кілька шкіл і дитячих садочків, аптеки, медичні заклади, мережеві супермаркети, торгово-розважальні центри, кафе і ресторани. Двір прохідний і зручний для щоденного пересування.

Схожі пропозиції