Продаж

Усі фото (4)
1к квартира дорога Набережно-Рибальська 3
- Додати в обране
-
Подiлитись посиланням
Тип ринку
Первинний ринок
Вулиця
дорога Набережно-Рибальська 3
Кількість кімнат
1
Поверх
3 Поверх
Поверховість
9 поверховий будинок
Загальна площа
54 м2
Загальний стан
Без ремонту
Ціна:
3 936 554 грн.
94 500 USD
Опис об'єкту
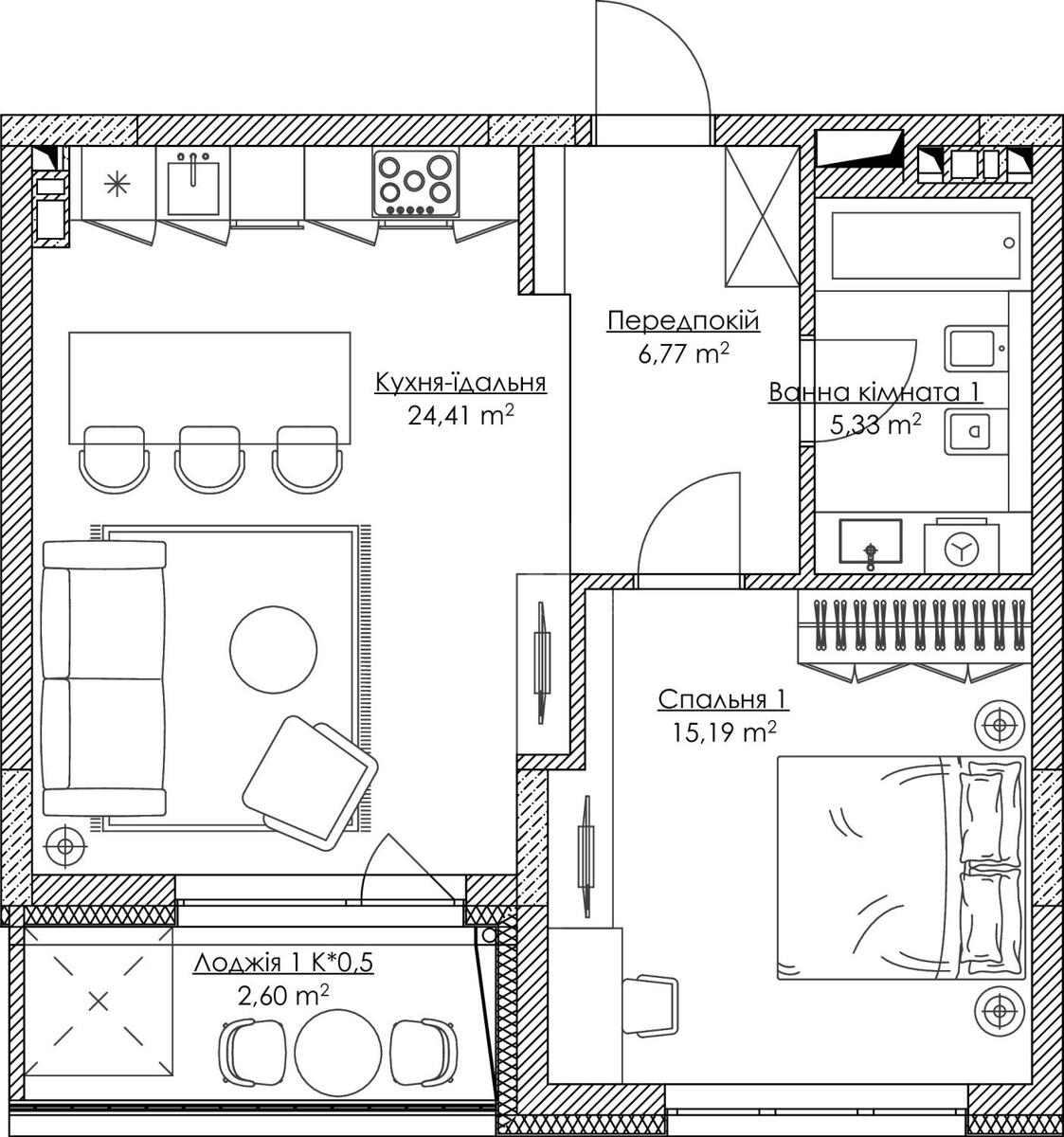
ЖК «Rybalsky», 1 кімнатна квартира. Планування квартири: простора кухня-вітальня — 24,3 м², ідеальне місце для відпочинку та прийому гостей, затишна спальня — 15,2 м², ванна кімната — 5,3 м², передпокій з місцем для зберігання — 6,8 м², лоджія — 2,6 м², яку можна облаштувати під невеликий кабінет чи лаунж-зону.
Додаткова інформація