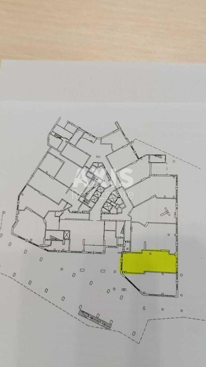
Trade object pr-t Berestejskij 11Б, 100m2

  • Shevchenkivskyi District pr-t Berestejskij 11Б
  • Code: RC-209-595
  • Added by: 12.05.2025
  • Add to favorites
Market type
Secondary market
Street
pr-t Berestejskij 11Б
Purpose
Trade Premise
Floor
1 Floor
Number of storeys
36 storey house
Total area
100 м2
General state
Without repair
Price:
75 032 UAH
1 785 USD
  • AXIS Real Estate
  • AXIS Real Estate
  • AXIS Real Estate
Description of the object

Manhattan City residential complex, free-use premises. One entrance group is located in the tunnel on the passage between the 1st and 2nd houses to McDonald's. Constant foot traffic to McDonald's. The second entrance group is located on the opposite side of the premises, next to one of the front doors. Nearby is the Polytechnic Institute metro station (up to 15 minutes on foot).

Additional Information

Similar offers