2k apartment vul. Jevgena Konoval'cja 30

  • Pecherskyi District vul. Jevgena Konoval'cja 30
  • Code: SF-3-249-413
  • Added by: 25.02.2026
  • Add to favorites
Market type
Primary market
Street
vul. Jevgena Konoval'cja 30
Number of rooms
2
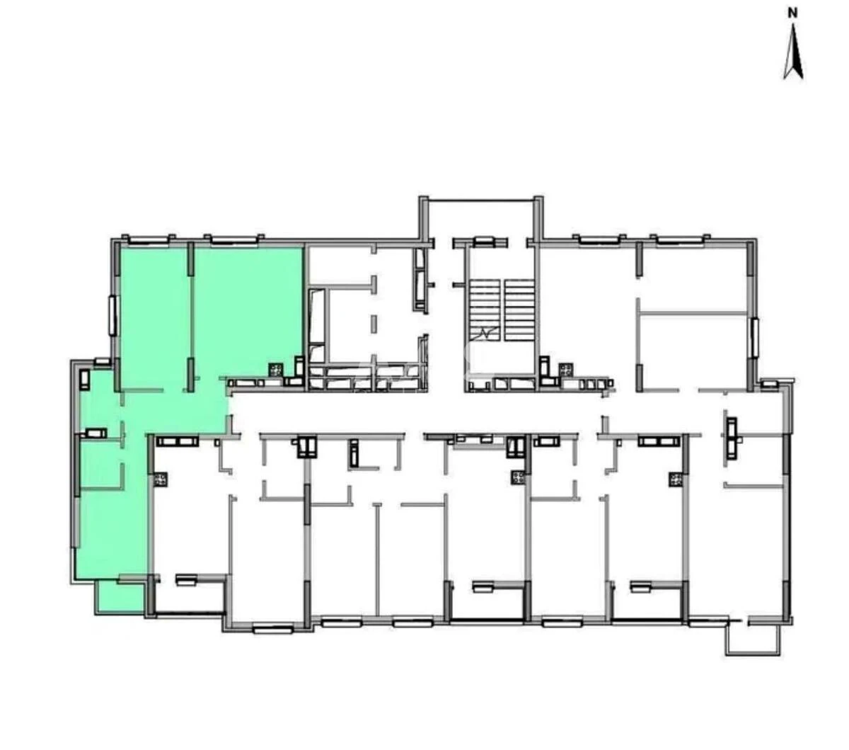
Floor
19 Floor
Number of storeys
26 storey house
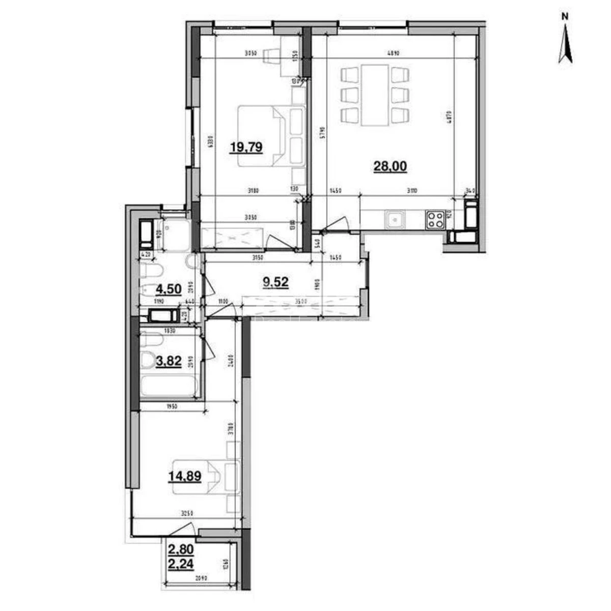
Total area
83 м2
General state
Without repair
Price:
7 362 662 UAH
170 000 USD
Description of the object

MAXIMA RESIDENCE, 2-bedroom apartment. We will sell an apartment of 83 m2 (2 bedrooms 20 and 15 m2 + kitchen-living room 28 m2) on the 19th floor in 1 section, located on the picturesque hills of Pechersk in the business class residential complex Maxima Residence at Yevhen Konovalets, 30 (Shchorsa), near the metro station Pecherskaya and Palace Ukraine. There are only 5 apartments on the floor.

Similar offers