2к квартира вул. Євгена Коновальця 30

  • Печерський район вул. Євгена Коновальця 30
  • Код: SF-3-249-413
  • Добавлено: 25.02.2026
  • Додати в обране
Тип ринку
Первинний ринок
Вулиця
вул. Євгена Коновальця 30
Кількість кімнат
2
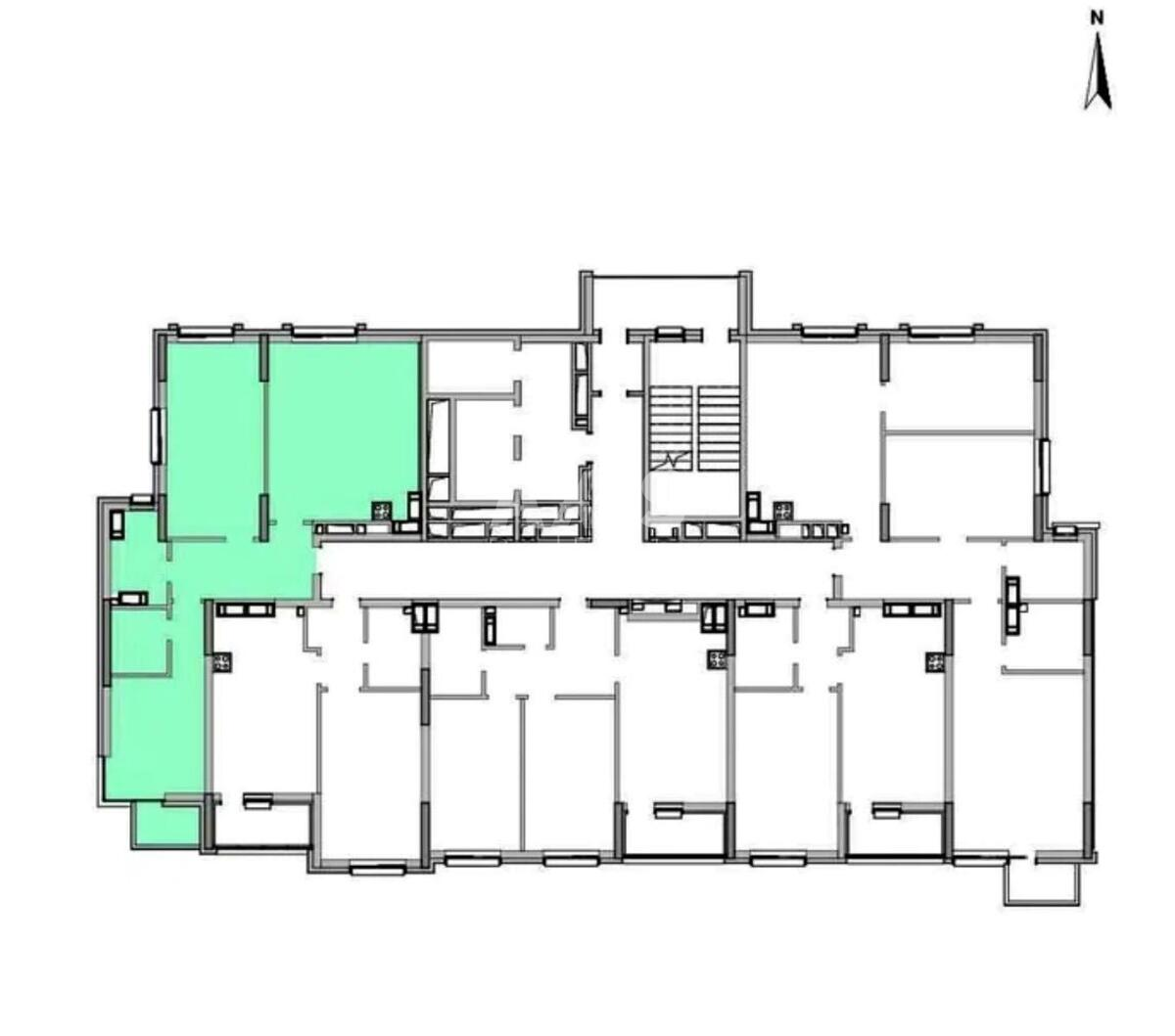
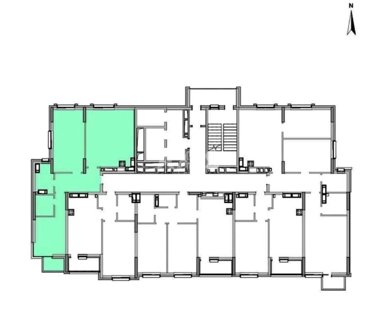
Поверх
19 Поверх
Поверховість
26 поверховий будинок
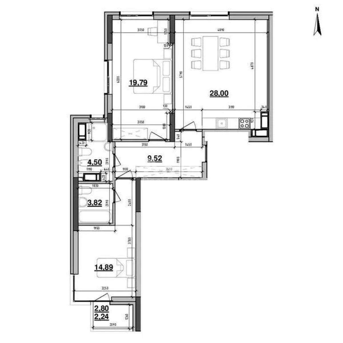
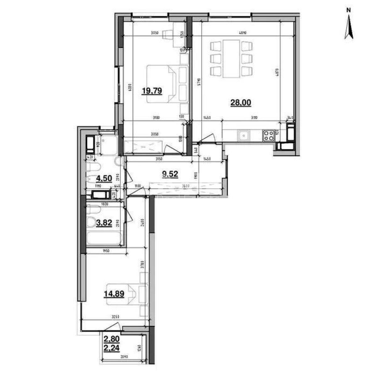
Загальна площа
83 м2
Загальний стан
Без ремонту
Ціна:
7 362 662 грн.
170 000 USD
Опис об'єкту

ЖК MAXIMA RESIDENCE, 2 кімнатна квартира. Продамо квартиру 83 м2 (2 спальні 20 та 15 м2 + кухня-вітальня 28 м2) на видовому 19 поверсі в 1 секції, що знаходиться на мальовничих пагорбах Печерська в жк бізнес-класу Maxima Residence за адресою Євгена Коновальця, 30 (Щорса), поруч метро Печерська та Палац Україна. На поверсі всього 5 квартир.

Схожі пропозиції