Объект торговли ул. Виталия Скакуна 4, 2396м2

  • Соломенский район ул. Виталия Скакуна 4
  • Код: SC-221-017
  • Добавлено: 16.04.2026
  • Добавить в избранное
Тип рынка
Вторичный рынок
Улица
ул. Виталия Скакуна 4
Призначення
Торговое помещение
Этаж
1 Этаж
Этажность
4 этажный дом
Общая площадь
2396 м2
Общее состояние
С ремонтом
Цена:
63 059 179 грн.
1 450 000 USD
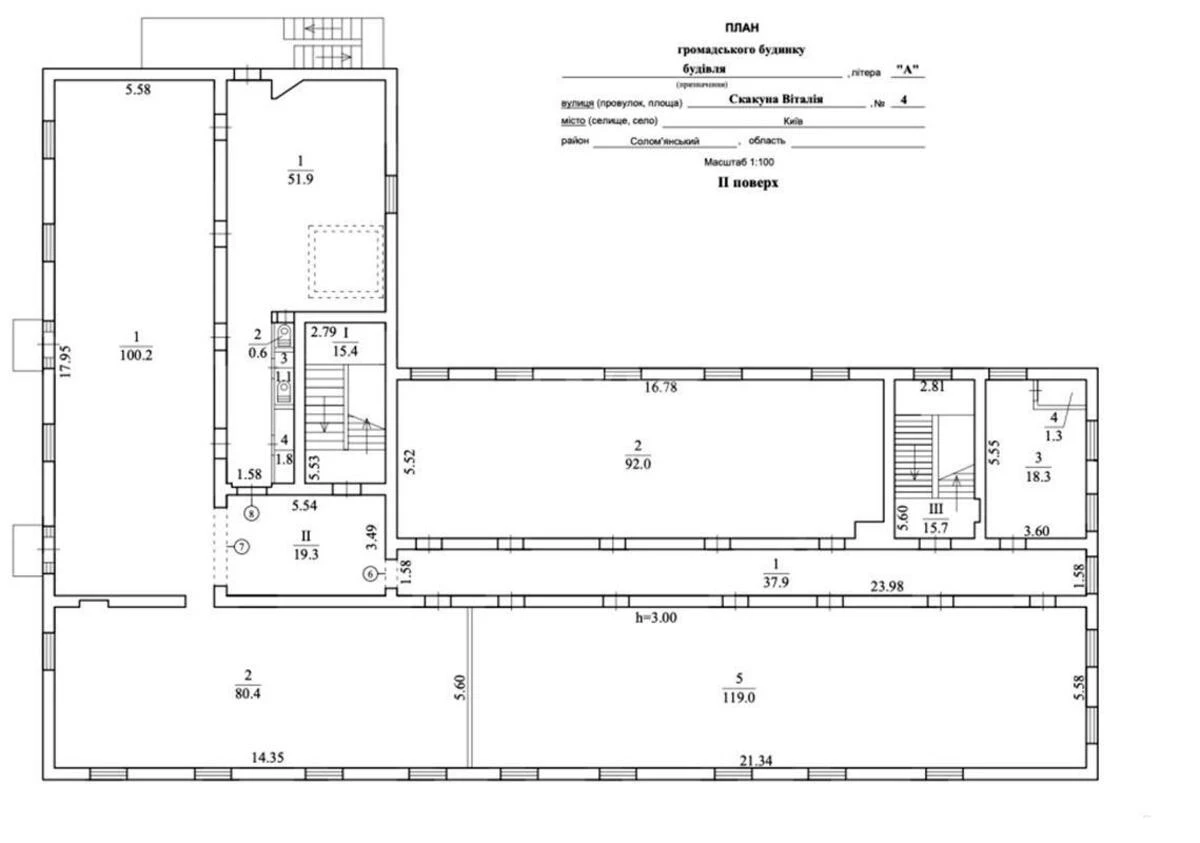
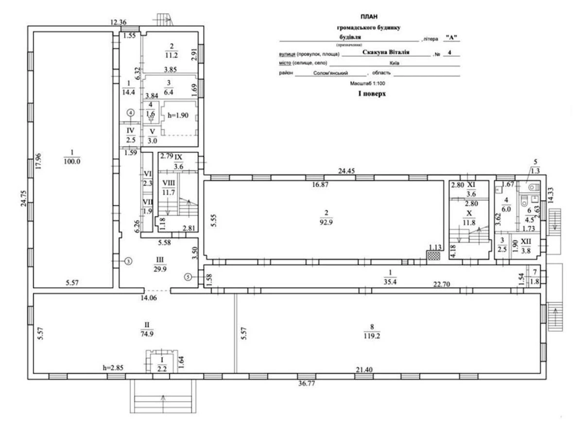
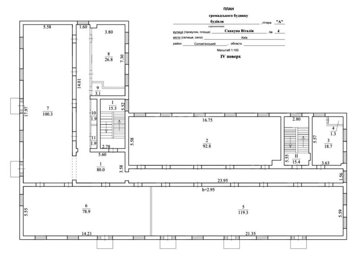
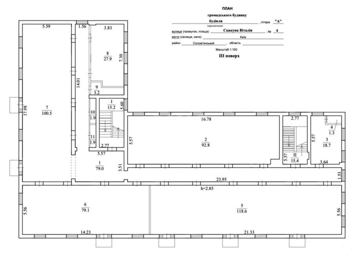
Описание объекта

Помещение свободного назначения. 1 этаж: 548 кв.м — идеально для ресепшн, клиентской зоны или лобби. 2, 3 и 4 этажи: более 555 кв.м на каждом — отличный формат для кабинетной системы или открытых офисных пространств. Подвал: 181,5 кв.м — имеет потенциал для обустройства надежного укрытия (бомбоубежища), склада или технических помещений. Здание имеет классическую капитальную конструкцию, характерную для общежитий: высокую несущую способность и правильную геометрическую форму. Это идеальный «конструктор» для редевелопмента. Бутовый фундамент и кирпичные стены гарантируют долговечность, а железобетонные перекрытия позволяют делать любую современную планировку, включая Open Space. Наличие полноценного подвала с возможностью обустройства сертифицированного укрытия — критическое преимущество на сегодняшнем рынке.

Похожие предложения