Объект торговли ул. Виктора Некрасова 10, 257м2

  • Подольский район ул. Виктора Некрасова 10
  • Код: RC-221-271
  • Добавлено: 24.02.2026
  • Добавить в избранное
Тип рынка
Вторичный рынок
Улица
ул. Виктора Некрасова 10
Призначення
Торговое помещение
Этаж
1 Этаж
Этажность
26 этажный дом
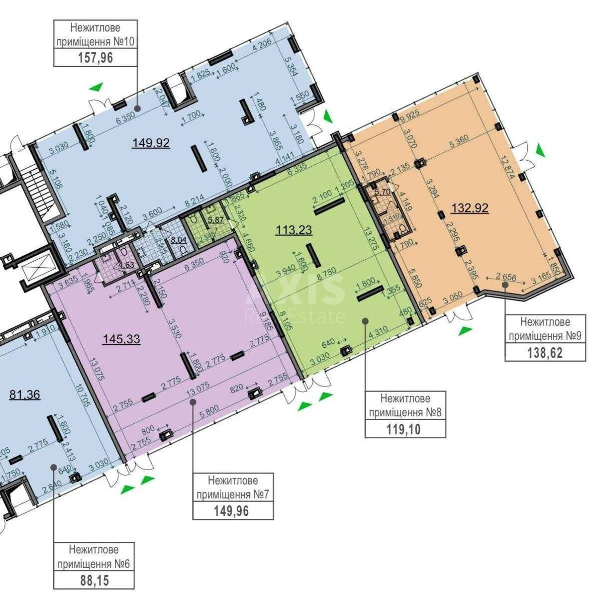
Общая площадь
257 м2
Общее состояние
Без ремонта
Цена:
205 600 грн.
4 750 USD
Описание объекта

ЖК Dibrova Park, помещение свободного назначения. Отдельный вентиляционный канал на крышу, подходит для кухни, кафе или ресторана. 2 отдельных ввода электроснабжения. На каждом вводе 3 фазы. Автоматы С40. Кабель 5х6 мм². Современный густонаселенный жилой комплекс. Район активно развивается. Подойдет под кафе, ресторан, магазин, клинику, стоматологию, салон, офис, детский центр и т.д. Хороший потенциал трафика.

Похожие предложения