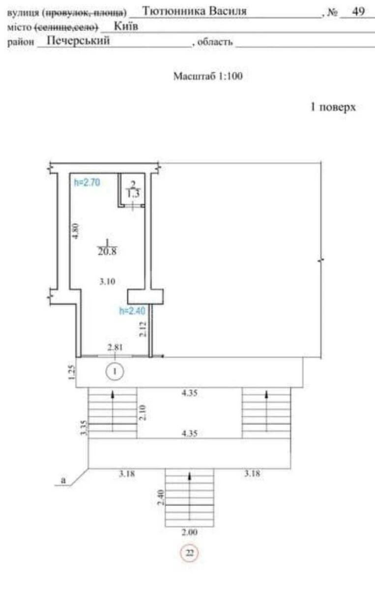
Объект торговли ул. Василия Тютюнника 49, 65м2

  • Печерский район ул. Василия Тютюнника 49
  • Код: SC-222-776
  • Добавлено: 25.05.2026
  • Добавить в избранное
Тип рынка
Вторичный рынок
Улица
ул. Василия Тютюнника 49
Призначення
Торговое помещение
Этаж
1 Этаж
Этажность
5 этажный дом
Общая площадь
65 м2
Общее состояние
С ремонтом
Цена:
15 494 378 грн.
350 000 USD
Описание объекта

Помещение свободного назначения. Качественный новый ремонт 2024 года. Все городские коммуникации. Постоянный поток посетителей. Нежилое помещение в жилом фонде. Развитая инфраструктура. Удачное расположение.

Похожие предложения