Объект торговли ул. Теремковская 4А, 100м2

  • Голосеевский район ул. Теремковская 4А
  • Код: SC-218-499
  • Добавлено: 27.11.2025
  • Добавить в избранное
Тип рынка
Вторичный рынок
Улица
ул. Теремковская 4А
Призначення
Торговое помещение
Этаж
1 Этаж
Этажность
25 этажный дом
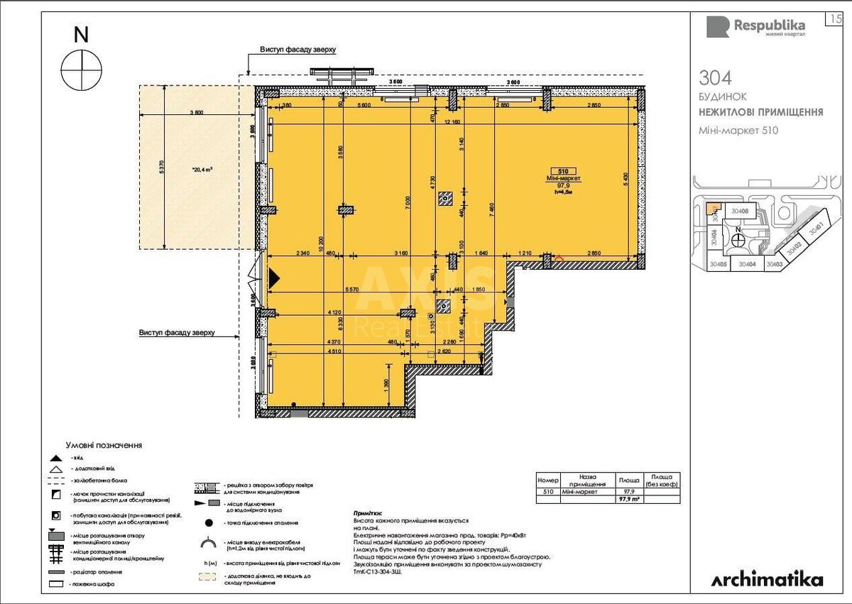
Общая площадь
100 м2
Общее состояние
Без ремонта
Цена:
12 515 173 грн.
296 000 USD
  • AXIS Real Estate
  • AXIS Real Estate
  • AXIS Real Estate
Описание объекта

ЖК Республика. Помещение под супермаркет. Есть все необходимое для работы. Густонаселенный район. Развитая инфраструктура. Хорошая локация. Удобная транспортная развязка.

Дополнительная информация

Похожие предложения