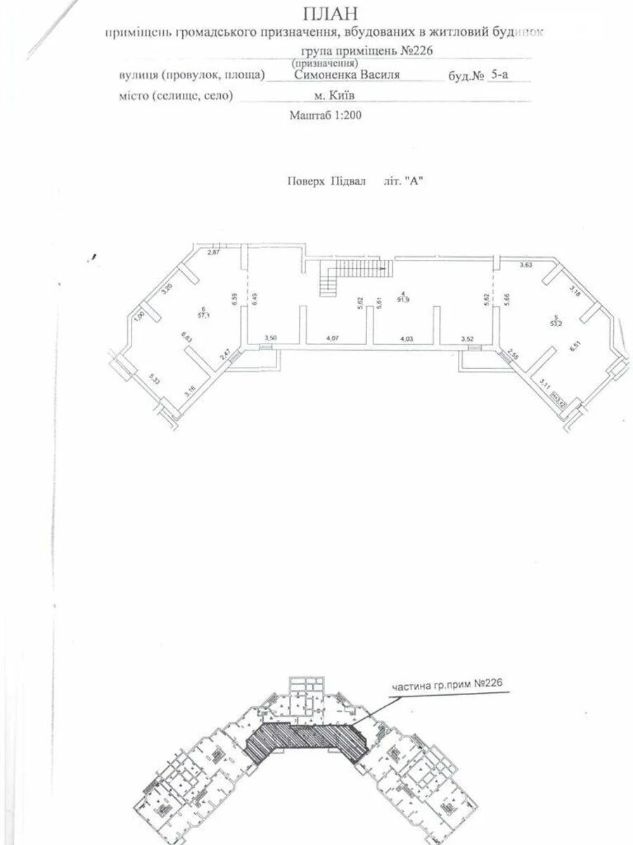
Объект торговли ул. Симоненко Василия 5А, 235м2

  • Голосеевский район ул. Симоненко Василия 5А
  • Код: SC-219-089
  • Добавлено: 26.05.2026
  • Добавить в избранное
Тип рынка
Вторичный рынок
Улица
ул. Симоненко Василия 5А
Призначення
Торговое помещение
Этаж
1 Этаж
Этажность
16 этажный дом
Общая площадь
235 м2
Общее состояние
С ремонтом
Цена:
4 867 124 грн.
110 000 USD
Описание объекта

ЖК Лико-Град, помещение свободного назначения. Общая площадь помещения - 235, 6 м2. Первый этаж - 33, 4 м2 - есть арендатор. Подвал - 202, 2 м2 - без ремонта, пока не используется. Вход в здание: Вход без порогов. Развитая инфраструктура развита. Хорошая и удобная локация.

Похожие предложения