Объект торговли ул. Степана Рудницкого 19/14, 240м2

  • Голосеевский район ул. Степана Рудницкого 19/14
  • Код: RC-223-783
  • Добавлено: 19.04.2026
  • Добавить в избранное
Тип рынка
Вторичный рынок
Улица
ул. Степана Рудницкого 19/14
Призначення
Торговое помещение
Этаж
1 Этаж
Этажность
18 этажный дом
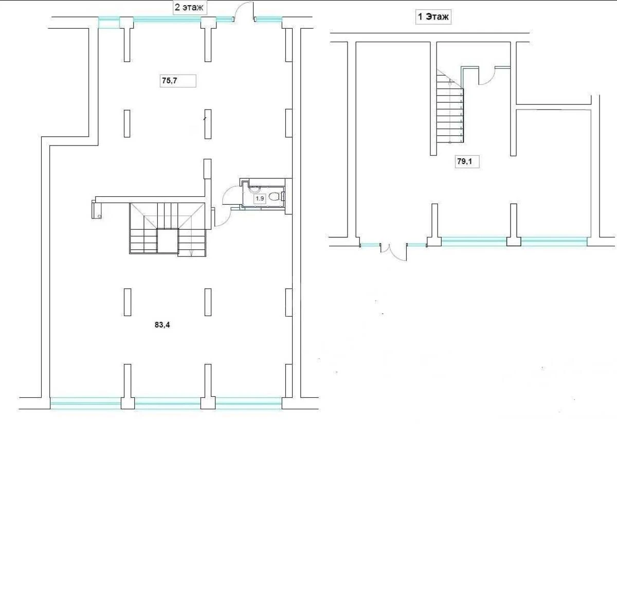
Общая площадь
240 м2
Общее состояние
С ремонтом
Цена:
219 284 грн.
5 000 USD
Описание объекта

ЖК «Венеция», помещение свободного назначения. Общая площадь 240 квадратных метров. Отдельный фасадный вход, а также отдельный вход со двора (на второй этаж помещения, но со двора идет как первый). Большие витрины с фасада и со двора. В помещении сделан современный ремонт в светлых тонах, оно полностью готово к эксплуатации. Мощность электроэнергии 40 кВт. Наличие отдельного вентиляционного канала с выходом на крышу. Отопление центральное с установленными счетчиками тепла. В помещении установлена пожарная и охранная сигнализация, система видеонаблюдения. Кондиционирование.

Похожие предложения