Продажа

Все фото (7)
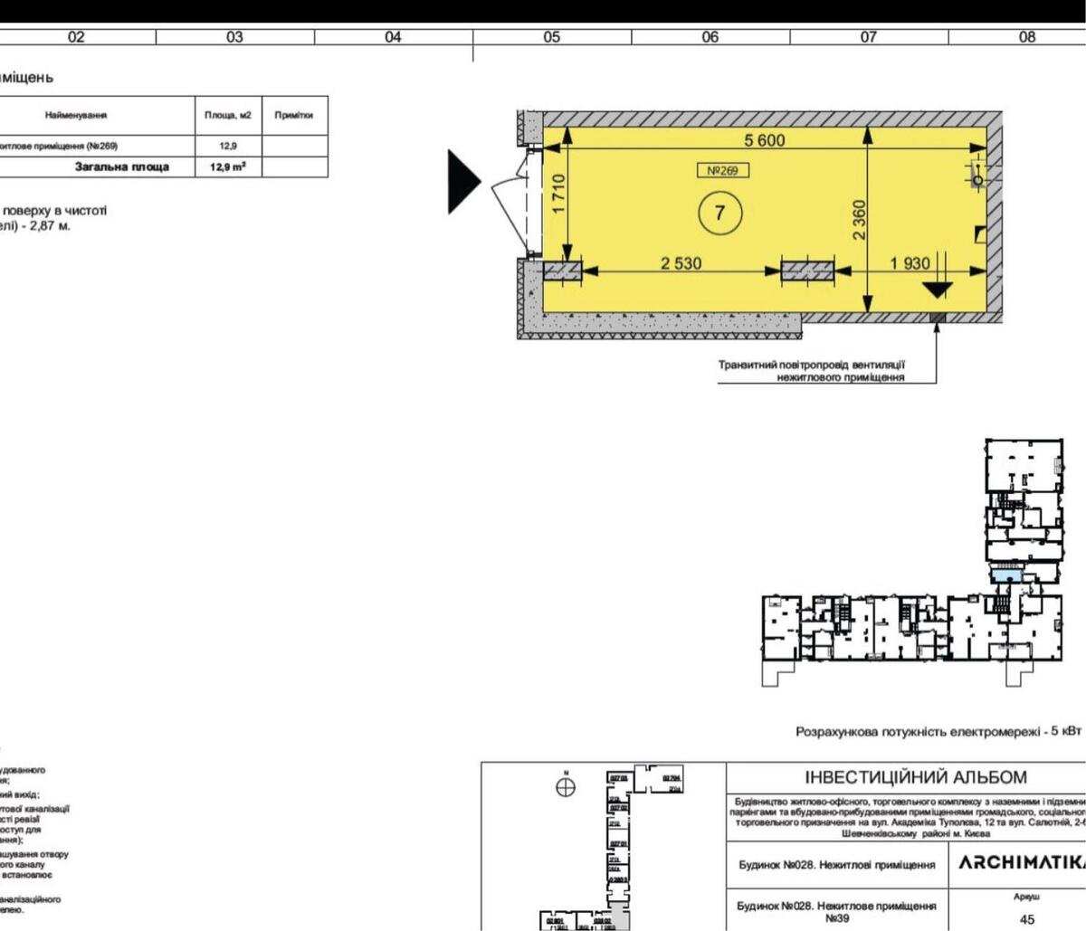
Объект торговли ул. Салютная 2Б, 12м2
- Добавить в избранное
-
Поделиться ссылкой
Тип рынка
Вторичный рынок
Улица
ул. Салютная 2Б
Призначення
Торговое помещение
Этаж
1 Этаж
Этажность
9 этажный дом
Общая площадь
12 м2
Общее состояние
Без ремонта
Цена:
2 891 358 грн.
69 999 USD
Описание объекта
ЖК Файна Таун, помещение свободного назначения. Есть мокрая точка - подходит для размещения кафе, салона, мастерской и тому подобное. Вывод в канализацию. Мощность электроэнергии - 10 кВт (ДТЭК). Документы в наличии. Помещение имеет длинный фасад / форму - идеально для размещения оборудования или зонирования. Идеально для: кафе, барбершопа, маникюрного салона, мини-пекарни, точки выдачи, офиса, магазина и тому подобное.
Дополнительная информация