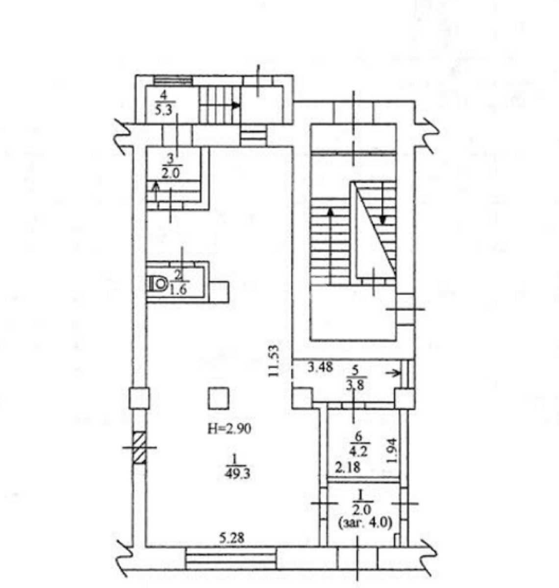
Объект торговли ул. Рэя Брэдбери 12/12, 68м2

  • Голосеевский район ул. Рэя Брэдбери 12/12
  • Код: SC-218-186
  • Добавлено: 21.11.2025
  • Добавить в избранное
Тип рынка
Вторичный рынок
Улица
ул. Рэя Брэдбери 12/12
Призначення
Торговое помещение
Этаж
1 Этаж
Этажность
4 этажный дом
Общая площадь
68 м2
Общее состояние
С ремонтом
Цена:
5 915 469 грн.
140 000 USD
  • AXIS Real Estate
  • AXIS Real Estate
  • AXIS Real Estate
Описание объекта

Помещение свободного назначения. Объект имеет отличное местонахождение и находится в отличном проходном и доступном месте. Рядом с помещением есть несколько остановок общественного транспорта. Также в пешей доступности есть Голосеевский парк, корпуса университета НУБИП и проезжая часть. Помещение находится посередине между станциями метро Голосеевская и Васильковская в достаточно проходном месте. Отдельный фасадный вход. Также есть место для парковки со стороны входа.

Дополнительная информация

Похожие предложения