Объект торговли ул. Ольжича 10, 42м2

  • Шевченковский район ул. Ольжича 10
  • Код: SC-221-150
  • Добавлено: 29.03.2026
  • Добавить в избранное
Тип рынка
Вторичный рынок
Улица
ул. Ольжича 10
Призначення
Торговое помещение
Этаж
1 Этаж
Этажность
5 этажный дом
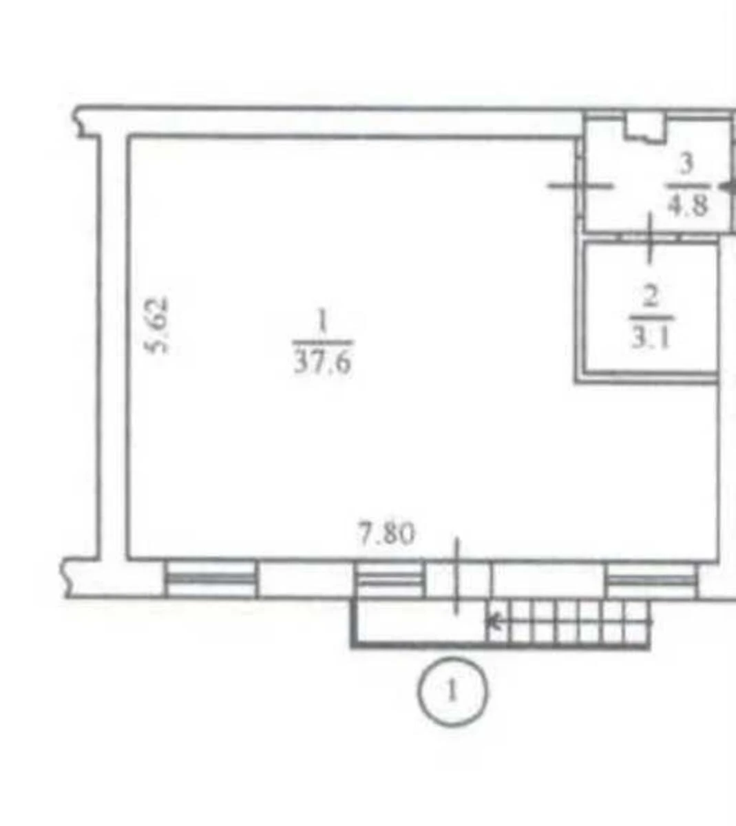
Общая площадь
42 м2
Общее состояние
С ремонтом
Цена:
5 266 729 грн.
120 000 USD
Описание объекта

Помещение свободного назначения. Расположено в большом жилом массиве. Рядом сети АТБ, Beer Market и Fora. Вокруг кафе, парикмахерские, салоны красоты. Недалеко детские сады, школы и аптеки. Станция метро Дорогожичи в пешей доступности. Высокий трафик. 1 этаж, отдельный вход. Большие витрины, место для рекламы. Потолок 2,80 м, мощность 10 кВт. Ремонт, санузел, все коммуникации.

Похожие предложения