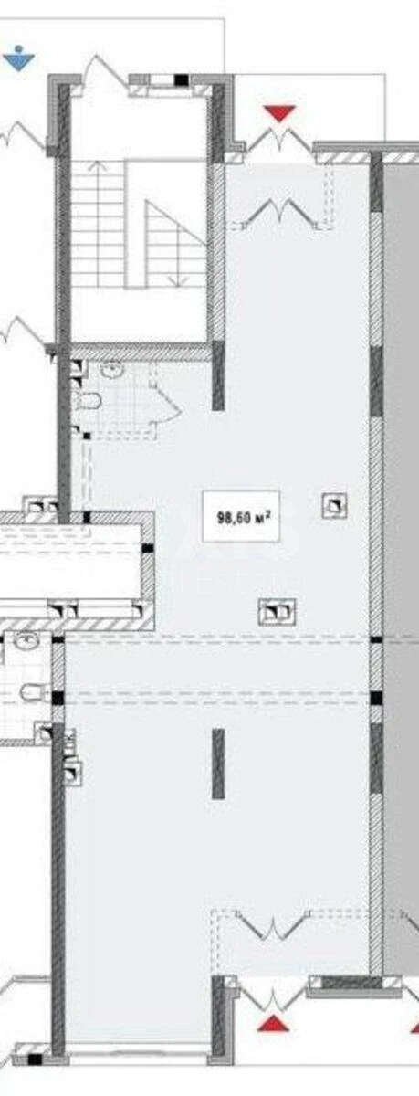
Объект торговли ул. Мокрая 8Б, 98м2

  • Соломенский район ул. Мокрая 8Б
  • Код: SC-222-788
  • Добавлено: 26.05.2026
  • Добавить в избранное
Тип рынка
Вторичный рынок
Улица
ул. Мокрая 8Б
Призначення
Торговое помещение
Этаж
1 Этаж
Этажность
25 этажный дом
Общая площадь
98 м2
Общее состояние
Без ремонта
Цена:
10 896 827 грн.
246 275 USD
Описание объекта

ЖК City Hub, помещение свободного назначения. Помещение на первом этаже современного жилого комплекса. Первый этаж — удобный доступ для будущих клиентов. Фасадное расположение, 2 входа, высота потолка 4,1 м. Отлично подходит под магазин, салон, офис, студию, медицинский кабинет или другой бизнес. Активный пешеходный трафик жильцов комплекса.

Похожие предложения