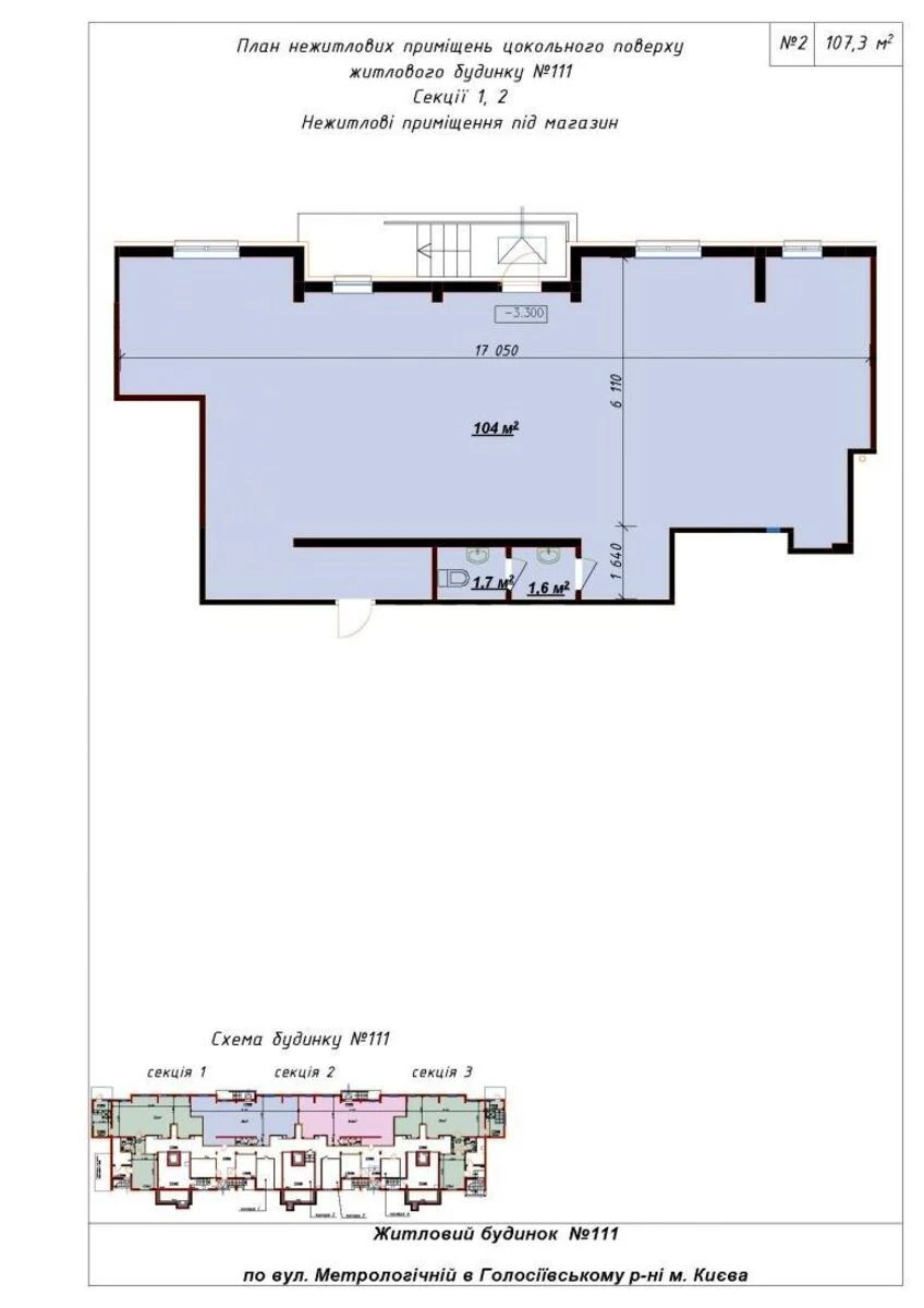
Объект торговли ул. Метрологическая 113, 107м2

  • Голосеевский район ул. Метрологическая 113
  • Код: RC-221-291
  • Добавлено: 14.02.2026
  • Добавить в избранное
Тип рынка
Вторичный рынок
Улица
ул. Метрологическая 113
Призначення
Торговое помещение
Этаж
0 Этаж
Этажность
6 этажный дом
Общая площадь
107 м2
Общее состояние
Без ремонта
Цена:
64 000 грн.
1 488 USD
Описание объекта

ЖК Кристальные источники, помещения свободного назначения. Есть возможность размещения наружной рекламы. Проводим ремонт помещений под арендатора, базовый или индивидуальный, по договоренности. Аренда коммерческих помещений напрямую от застройщика. Доступны помещения различной площади, планировки и функционального назначения: под офисы, сервис, торговлю, студии, склады и другие направления.

Похожие предложения