Продажа

Все фото (7)
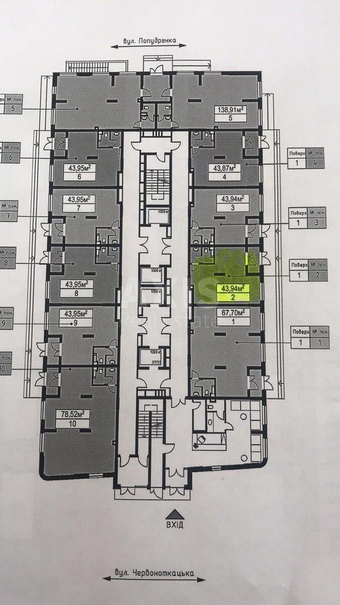
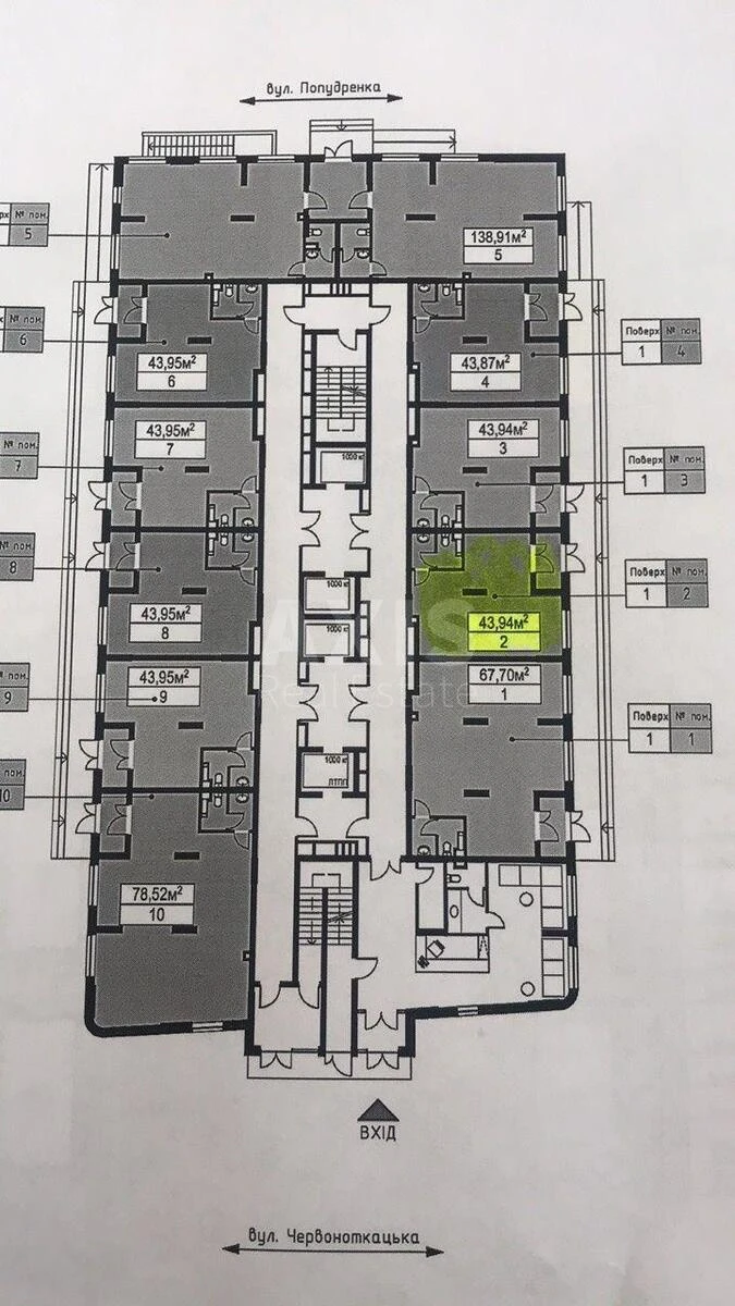
Объект торговли ул. Магнитогорская 5, 44м2
- Добавить в избранное
-
Поделиться ссылкой
Тип рынка
Вторичный рынок
Улица
ул. Магнитогорская 5
Призначення
Торговое помещение
Этаж
1 Этаж
Этажность
25 этажный дом
Общая площадь
44 м2
Общее состояние
Без ремонта
Цена:
3 970 250 грн.
95 000 USD
Описание объекта
Помещение свободного назначения. Здание оснащено современной технологией 'умный дом', что обеспечивает удобное управление освещением, климатом и другими системами. Для безопасности жителей и работников предусмотрено видеонаблюдение и охрану территории. Помещение предлагается без мебели, что позволяет обустроить пространство в соответствии с собственными потребностями и пожеланиями.
Дополнительная информация