Объект торговли ул. Лисковская 6, 63м2

  • Деснянский район ул. Лисковская 6
  • Код: SC-224-027
  • Добавлено: 22.04.2026
  • Добавить в избранное
Тип рынка
Вторичный рынок
Улица
ул. Лисковская 6
Призначення
Торговое помещение
Этаж
1 Этаж
Этажность
9 этажный дом
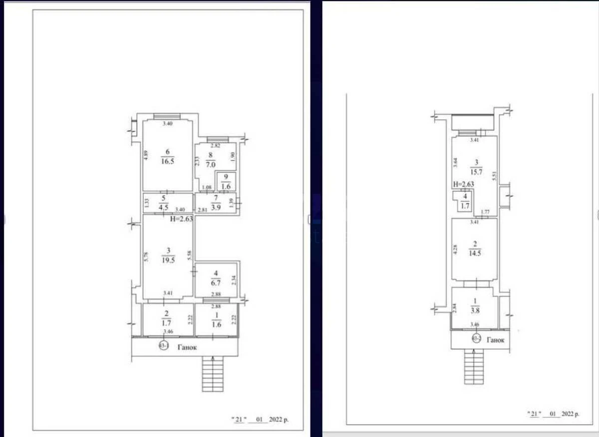
Общая площадь
63 м2
Общее состояние
С ремонтом
Цена:
13 238 462 грн.
300 000 USD
Описание объекта

Помещение свободного назначения. Оживлённый пешеходный и автомобильный трафик, рядом находится остановка общественного транспорта. Помещение сдаётся в аренду стоматологической клинике (1200 д) Объект после ремонта. В помещении сделан дорогой, качественный ремонт, установлены кондиционеры, заменена сантехника, заменены все батареи, новая проводка, интернет. По всему объекту установлено дорогое энергосберегающее светодиодное освещение.

Похожие предложения