Объект торговли ул. Ереванская 3, 36м2

  • Соломенский район ул. Ереванская 3
  • Код: SC-219-855
  • Добавлено: 25.02.2026
  • Добавить в избранное
Тип рынка
Вторичный рынок
Улица
ул. Ереванская 3
Призначення
Торговое помещение
Этаж
1 Этаж
Этажность
6 этажный дом
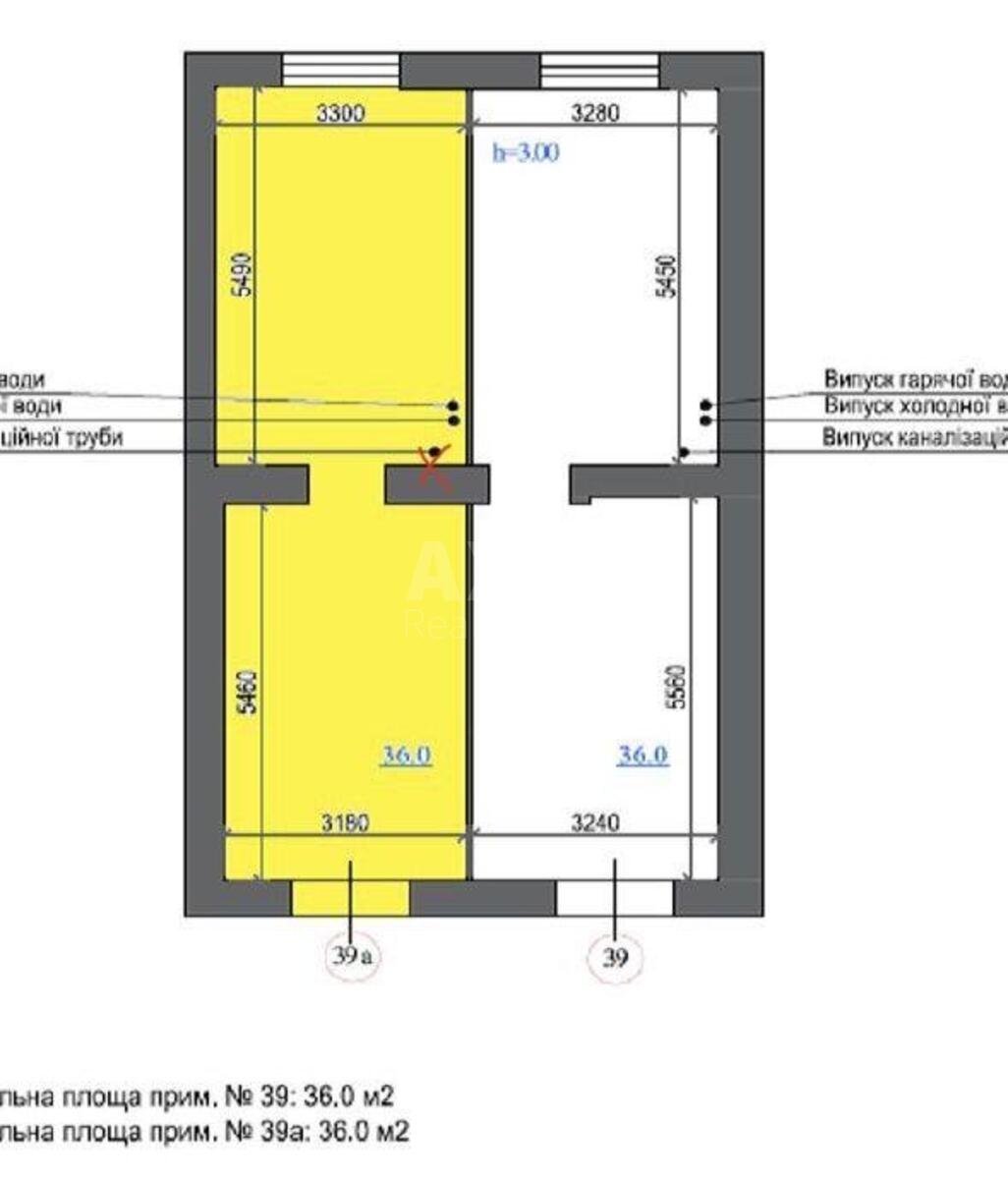
Общая площадь
36 м2
Общее состояние
С ремонтом
Цена:
3 508 048 грн.
80 999 USD
Описание объекта

Помещение свободного назначения. Готовый арендный бизнес. 36 м.кв. Ереванская. Соломенка. Чоколовка. Фасад, отдельный вход. Проходное и активное место. Свет 3 фазы 15 квт. Все коммуникации.

Похожие предложения