Объект торговли ул. Дарвина 10, 43м2

  • Печерский район ул. Дарвина 10
  • Код: SC-219-858
  • Добавлено: 28.01.2026
  • Добавить в избранное
Тип рынка
Вторичный рынок
Улица
ул. Дарвина 10
Призначення
Торговое помещение
Этаж
1 Этаж
Этажность
5 этажный дом
Общая площадь
43 м2
Общее состояние
С ремонтом
Цена:
4 726 823 грн.
110 000 USD
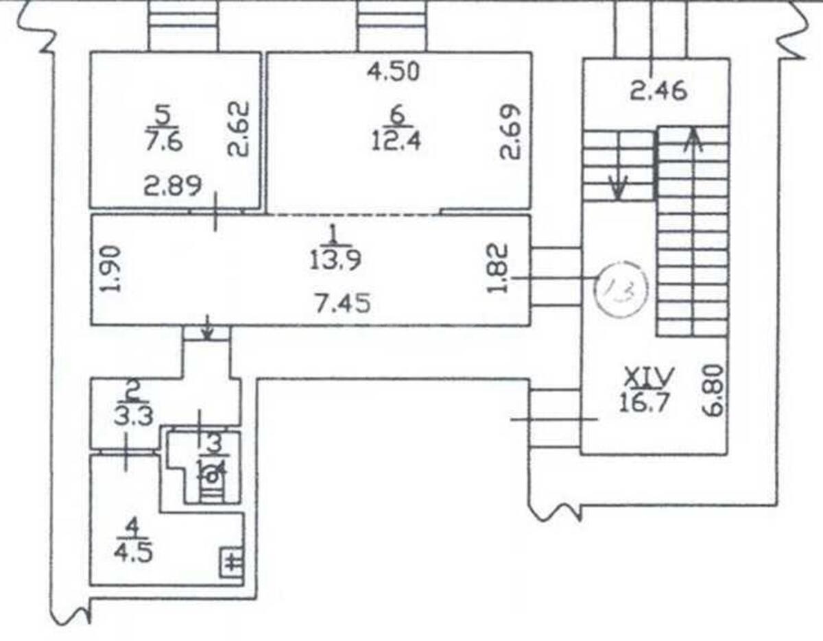
Описание объекта

Помещение свободного назначения. Нежилое помещение общей площадью 43,1 м2. Ранее использовалось как магазин по продаже элитной одежды. Техническое состояние помещения такое, как на фото, удовлетворительное. Помещение электрифицировано, установлен электросчетчик, есть холодная вода, отопление, сигнализация.

Похожие предложения