Объект торговли ул. Андрея Верхогляда 19А, 307м2

  • Печерский район ул. Андрея Верхогляда 19А
  • Код: SC-220-207
  • Добавлено: 25.02.2026
  • Добавить в избранное
Тип рынка
Вторичный рынок
Улица
ул. Андрея Верхогляда 19А
Призначення
Торговое помещение
Этаж
1 Этаж
Этажность
3 этажный дом
Общая площадь
307 м2
Общее состояние
Без ремонта
Цена:
33 781 629 грн.
780 000 USD
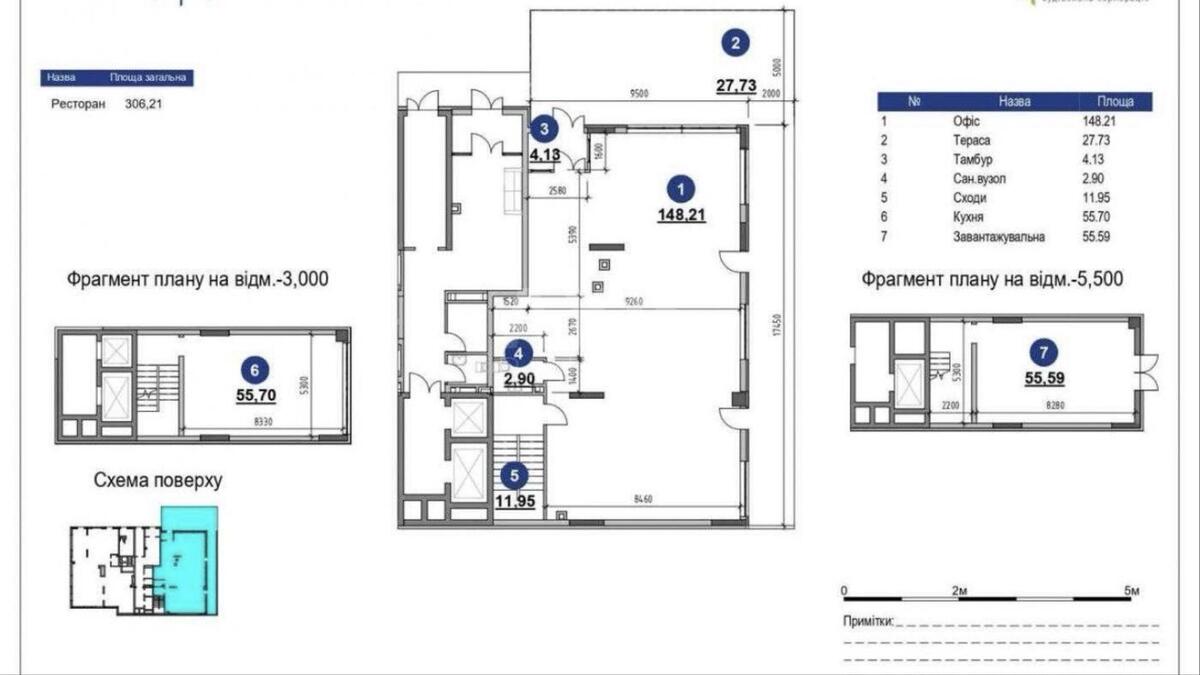
Описание объекта

ЖК Новопечерские Липки, помещение свободного назначения. Просторное помещение, которое можно использовать как главный зал ресторана или зону обслуживания клиентов. Терраса – 27,73 м² Открытая зона с отдельным выходом, идеально подходит для летних столиков или зоны отдыха. Тамбур – 4,13 м². Входная зона для защиты от перепадов температур. Санузел – 2,90 м². Компактное помещение с возможностью обустройства санитарного узла. Лестница – 11,95 м². Соединяет основное помещение с техническими зонами нижних уровней. Кухня (на отметке -3,000) – 55,70 м².

Похожие предложения