Объект торговли пер. Голосеевский 93, 363м2

  • Голосеевский район пер. Голосеевский 93
  • Код: RC-211-066
  • Добавлено: 12.06.2025
  • Добавить в избранное
Тип рынка
Вторичный рынок
Улица
пер. Голосеевский 93
Призначення
Торговое помещение
Этаж
0 Этаж
Этажность
8 этажный дом
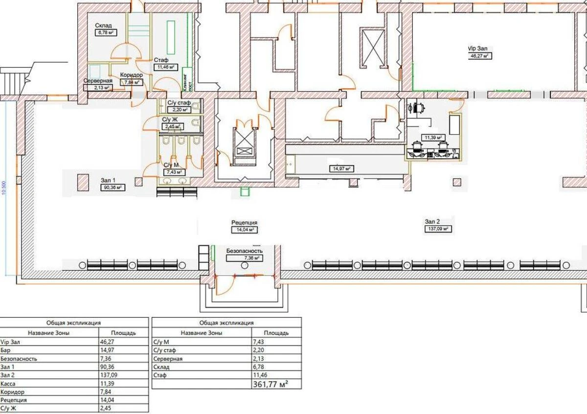
Общая площадь
363 м2
Общее состояние
С ремонтом
Цена:
182 000 грн.
4 304 USD
  • AXIS Real Estate
  • AXIS Real Estate
  • AXIS Real Estate
Описание объекта

Помещение свободного назначения. Цокольное помещение с удобным отдельным входом, отличный стеклянный фасад с которого открывается вид на Голосеевский проспект с интенсивным потоком автомобилей и пешеходов. Рядом находятся: гостиница, автосалон Renault/Nissan Голосеевский, офисный центр, банки, университет, жилые кварталы, супермаркеты, до станции метро 900 метров. Инженерные коммуникации: электричество, отопление, водоснабжение, водоотведение.

Дополнительная информация

Похожие предложения