Объект торговли пр-т Европейского Союза 31А, 176м2

  • Подольский район пр-т Европейского Союза 31А
  • Код: SC-217-067
  • Добавлено: 27.10.2025
  • Добавить в избранное
Тип рынка
Вторичный рынок
Улица
пр-т Европейского Союза 31А
Призначення
Торговое помещение
Этаж
1 Этаж
Этажность
16 этажный дом
Общая площадь
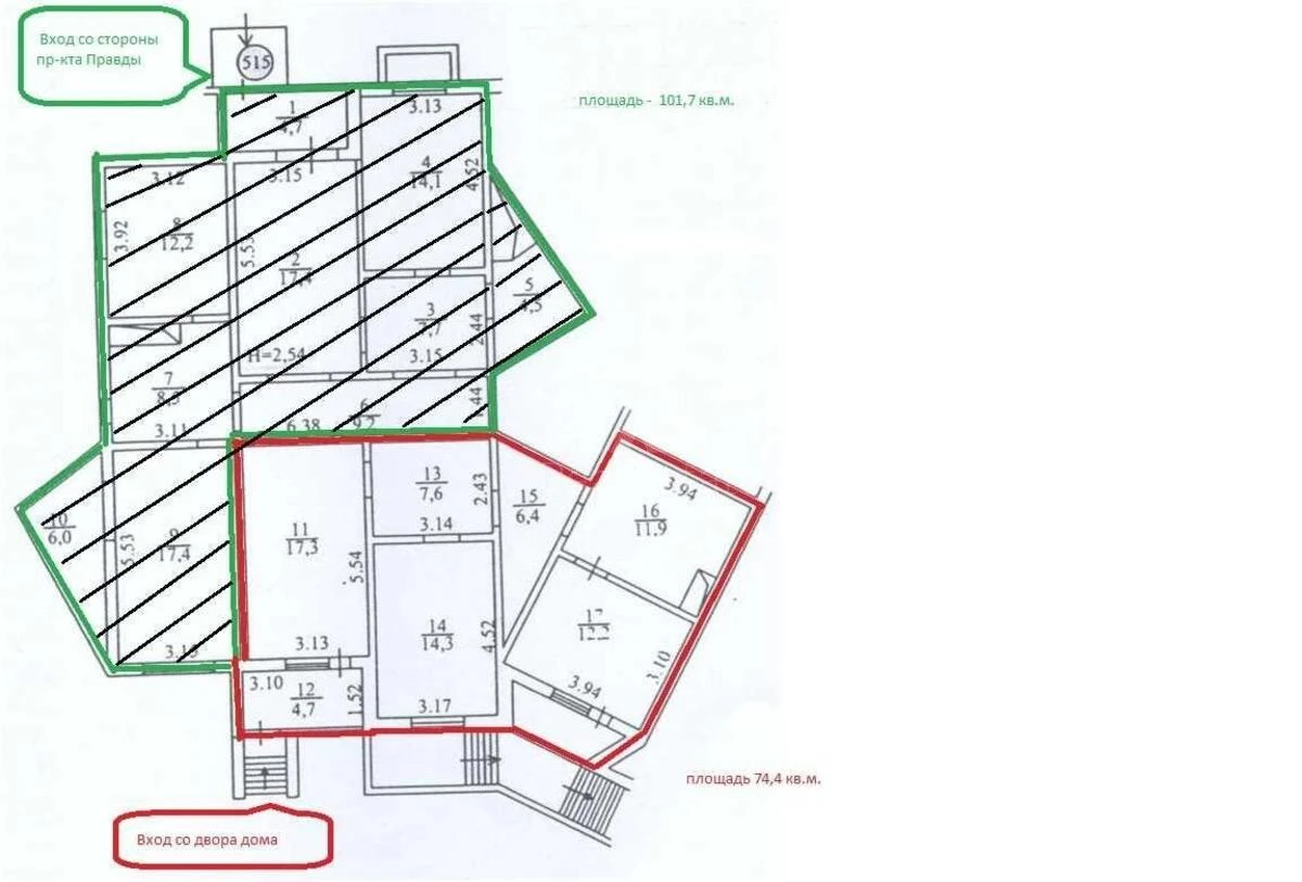
176 м2
Общее состояние
С ремонтом
Цена:
8 879 008 грн.
210 000 USD
  • AXIS Real Estate
  • AXIS Real Estate
  • AXIS Real Estate
Описание объекта

Помещение свободного назначения. Общая площадь 176 кв.м. 100 метров с ремонтом, с арендатором. С хорошим ремонтом. Есть все необходимое для работы. Развитая инфраструктура. Хорошая локация.

Дополнительная информация