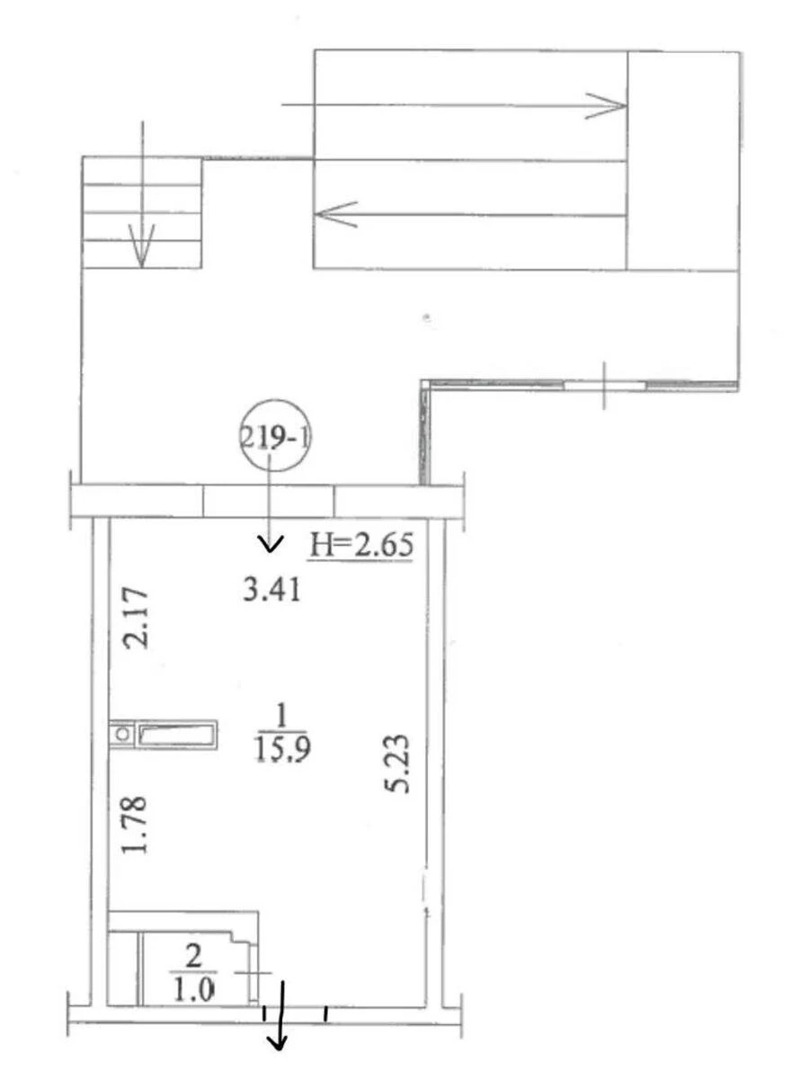
Объект торговли пр-т Оболонский 40, 17м2

  • Оболонский район пр-т Оболонский 40
  • Код: RC-220-775
  • Добавлено: 27.02.2026
  • Добавить в избранное
Тип рынка
Вторичный рынок
Улица
пр-т Оболонский 40
Призначення
Торговое помещение
Этаж
1 Этаж
Этажность
9 этажный дом
Общая площадь
17 м2
Общее состояние
С ремонтом
Цена:
26 000 грн.
601 USD
Описание объекта

Помещение свободного назначения. С ремонтом (фото немного устарели. Сейчас там кофейня) – сделано электричество, сантехника, санузел, штукатурка, бойлер, wifi интернет, видеонаблюдение, кондиционер, централизованное отопление. Прямо у метро и остановок транспорта и Дрим Тауна. Фасадное нежилое помещение под магазин, обменник и прочее.

Похожие предложения