Объект торговли пр-т Лобановского 14, 118м2

  • Соломенский район пр-т Лобановского 14
  • Код: SC-223-780
  • Добавлено: 18.04.2026
  • Добавить в избранное
Тип рынка
Вторичный рынок
Улица
пр-т Лобановского 14
Призначення
Торговое помещение
Этаж
1 Этаж
Этажность
9 этажный дом
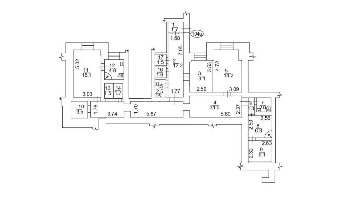
Общая площадь
118 м2
Общее состояние
С ремонтом
Цена:
2 573 306 грн.
59 000 USD
Описание объекта

Помещение свободного назначения. В помещении выполнен частичный ремонт. Подключены все необходимые коммуникации: электричество, водоснабжение, отопление, канализация. На окнах установлены решетки. В помещении установлена действующая электрическая сауна. На окнах установлены решетки. Помещение подойдет для салона красоты, спа-центра, частной клиники, мини-хостела (общежития), интернет-магазина (со складом), офиса открытого и закрытого типа.

Похожие предложения