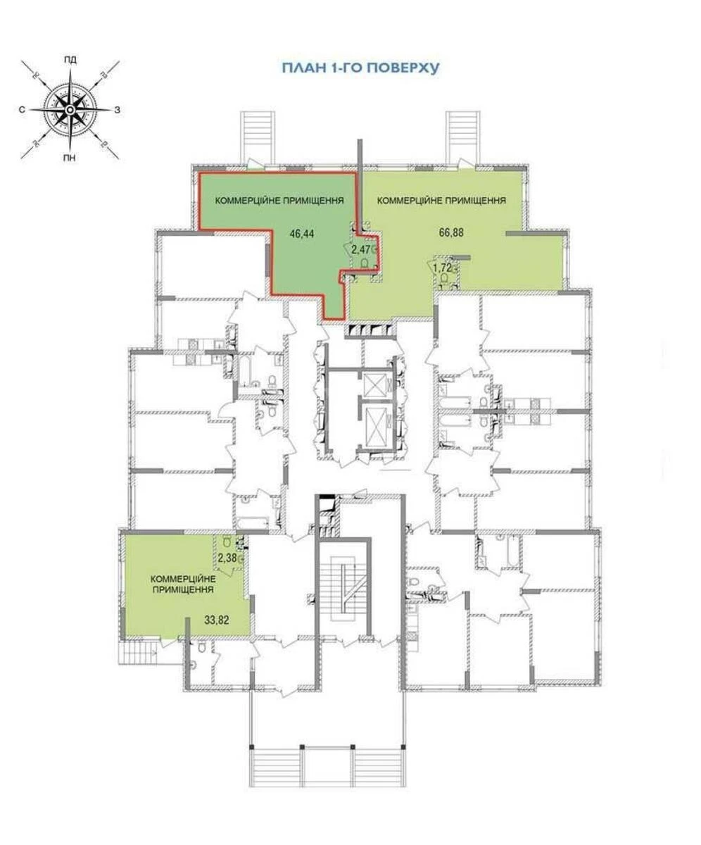
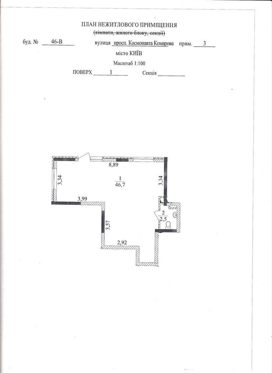
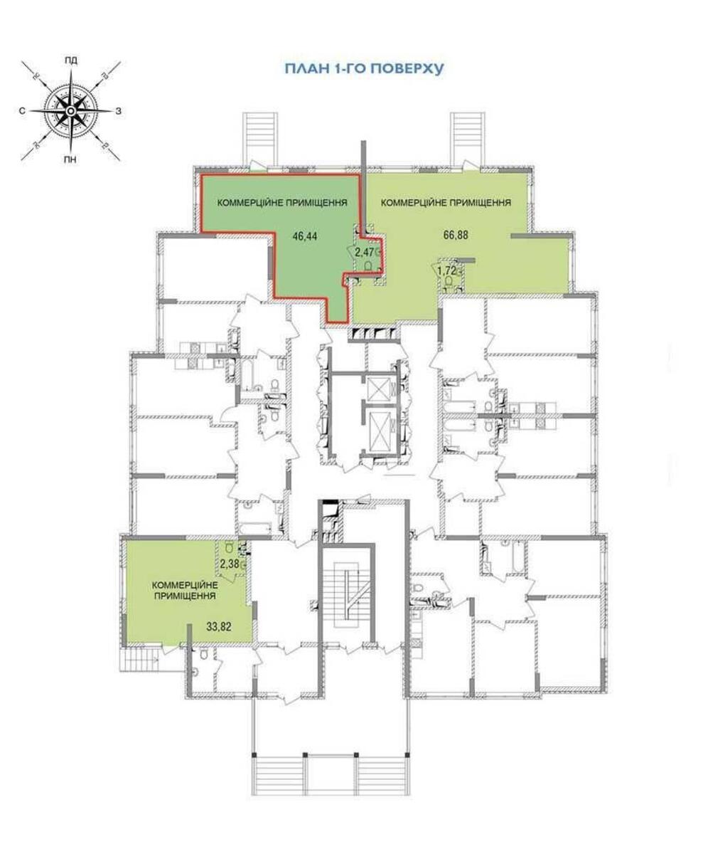
Объект торговли пр-т Любомира Гузара 46В, 49м2

  • Соломенский район пр-т Любомира Гузара 46В
  • Код: SC-210-806
  • Добавлено: 05.06.2025
  • Добавить в избранное
Тип рынка
Вторичный рынок
Улица
пр-т Любомира Гузара 46В
Призначення
Торговое помещение
Этаж
1 Этаж
Этажность
25 этажный дом
Общая площадь
49 м2
Общее состояние
С ремонтом
Цена:
3 365 070 грн.
79 900 USD
  • AXIS Real Estate
  • AXIS Real Estate
  • AXIS Real Estate
Описание объекта

Помещение свободного назначения. Состояние: пол-плитка, стены оштукатурены и окрашены, потолок армстронг. Новостройка, фасад на оживленную проезжую часть. Комплекс состоит из двух домов по 16 этажей (по 125 квартир в каждом), детской и спортивной площадок, парковки. Комплекс ОЧЕНЬ перспективный с точки зрения открытия аптеки, салона красоты, хозтоварного магазина, офиса и т.д.

Дополнительная информация

Похожие предложения