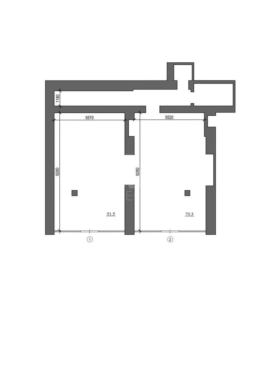
Объект торговли пр-т Голосеевский 68, 127м2

  • Голосеевский район пр-т Голосеевский 68
  • Код: RC-224-199
  • Добавлено: 27.04.2026
  • Добавить в избранное
Тип рынка
Вторичный рынок
Улица
пр-т Голосеевский 68
Призначення
Торговое помещение
Этаж
1 Этаж
Этажность
9 этажный дом
Общая площадь
127 м2
Общее состояние
Без ремонта
Цена:
130 000 грн.
2 952 USD
Описание объекта

Помещение свободного назначения. Отдельный вход с фасада. Панорамные витринные окна. Помещение без ремонта — возможность адаптировать его именно под ваш вид деятельности. Есть возможность размещения наружной рекламы. Коммуникации: Электроэнергия 10 кВт и более, вода, отопление, канализация.

Похожие предложения