Объект торговли пр-т Берестейский 18, 500м2

  • Шевченковский район пр-т Берестейский 18
  • Код: SC-222-171
  • Добавлено: 30.04.2026
  • Добавить в избранное
Тип рынка
Вторичный рынок
Улица
пр-т Берестейский 18
Призначення
Торговое помещение
Этаж
1 Этаж
Этажность
6 этажный дом
Общая площадь
500 м2
Общее состояние
С ремонтом
Цена:
59 511 153 грн.
1 350 000 USD
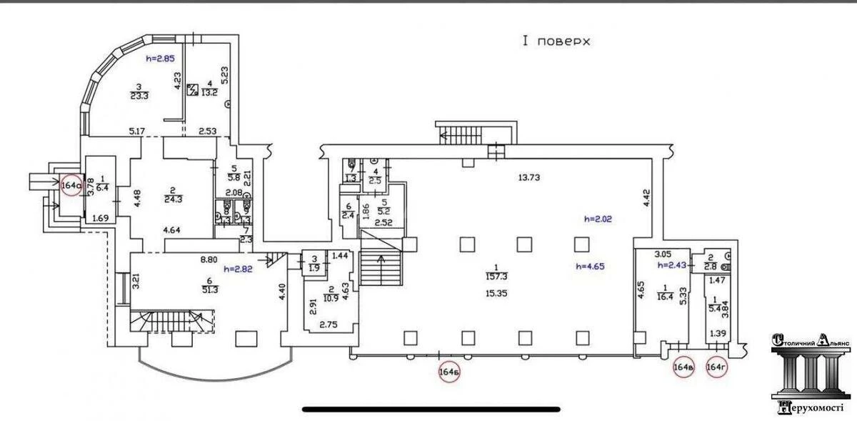
Описание объекта

Приміщення вільного призначення. Вивіска на проспект Берестейський (Перемоги), великі вітрини, рампа для розвантажування на задньому дворі. Пять орендарів: 1) Ресторан 'Паштет' 200 кв.м, 2) Магазин 'Бізон' (30 кв.м фасадна вхідна група та антресоль 90 кв.м). 3) Магазин 150 кв.м. 4) Овочевий магазин 25 кв.м. 5) Обмін валют. Загальна потужність електроенергії 60 кВт.

Похожие предложения