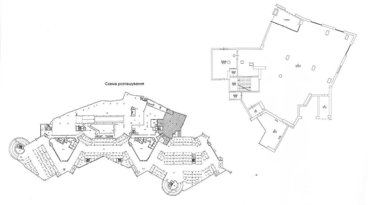
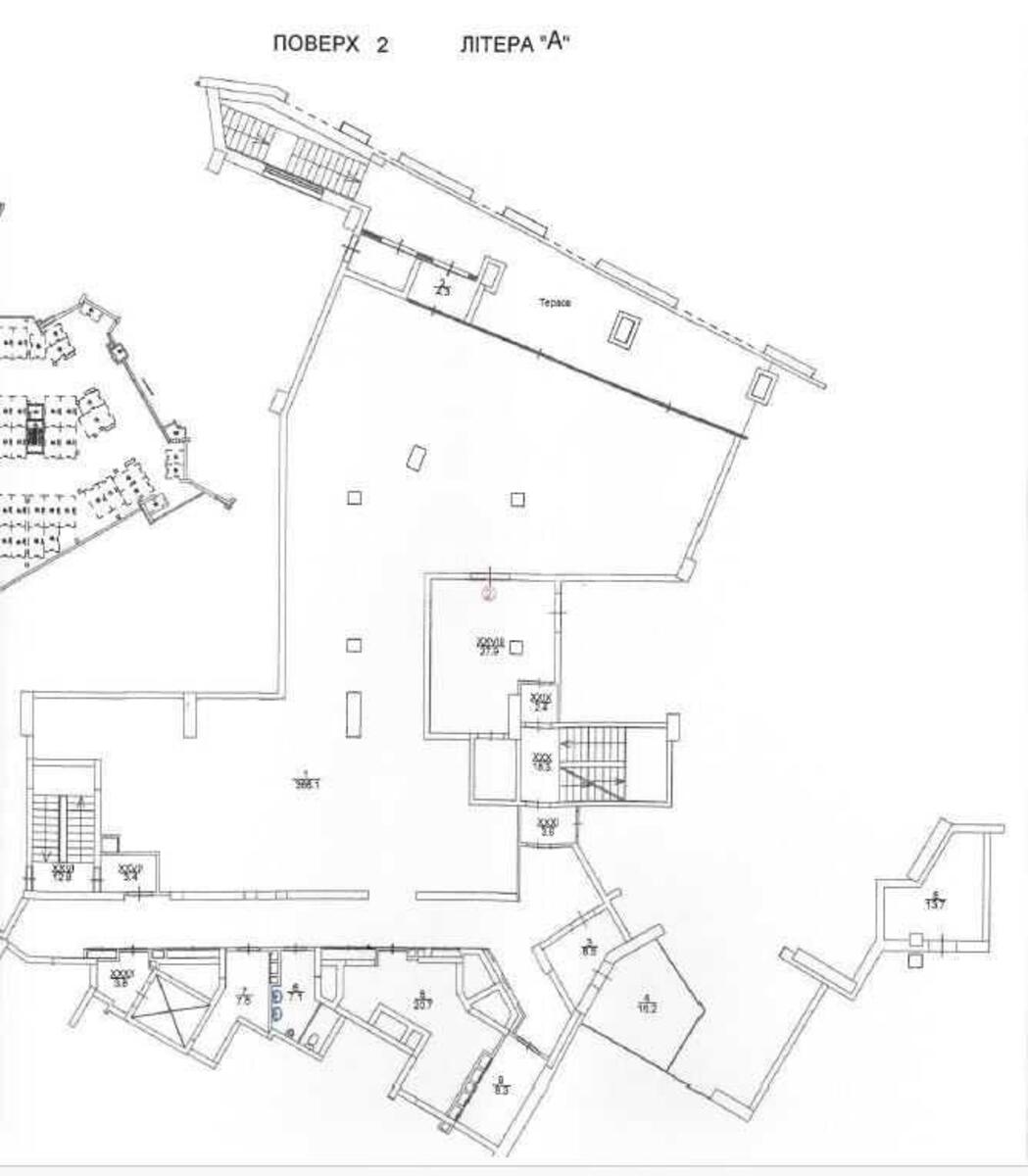
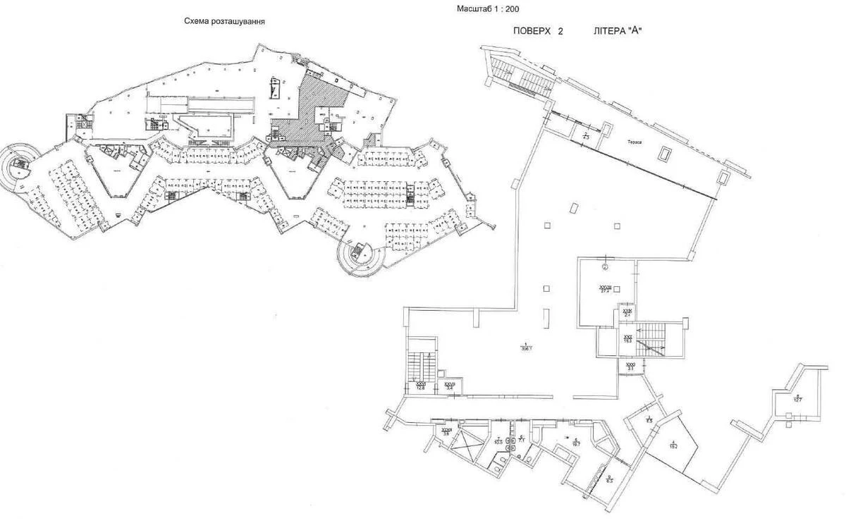
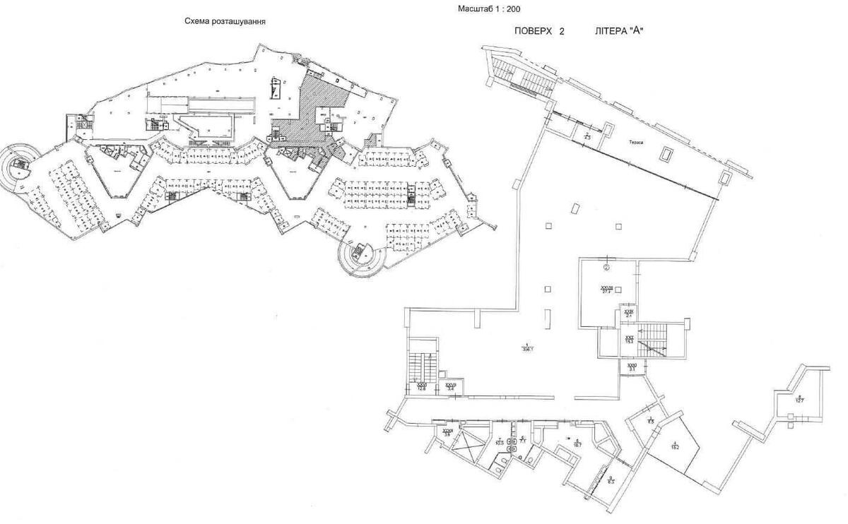
Объект торговли пр-т Берестейский 11Б, 812м2

  • Шевченковский район пр-т Берестейский 11Б
  • Код: SC-217-563
  • Добавлено: 06.11.2025
  • Добавить в избранное
Тип рынка
Вторичный рынок
Улица
пр-т Берестейский 11Б
Призначення
Торговое помещение
Этаж
2 Этаж
Этажность
36 этажный дом
Общая площадь
812 м2
Общее состояние
Без ремонта
Цена:
82 447 936 грн.
1 950 000 USD
  • AXIS Real Estate
  • AXIS Real Estate
  • AXIS Real Estate
Описание объекта

ЖК "Manhattan City", помещение свободного назначения. Помещение имеет большие фасадные панорамные окна, выходящие на проспект, - идеальное решение для магазина, ресторана, спортзала, шоурума или офиса представительского уровня. Предусмотрено два отдельных фасадных входа для клиентов и два дополнительных технических входа с возможностью подъезда авто с тыльной стороны здания.

Дополнительная информация