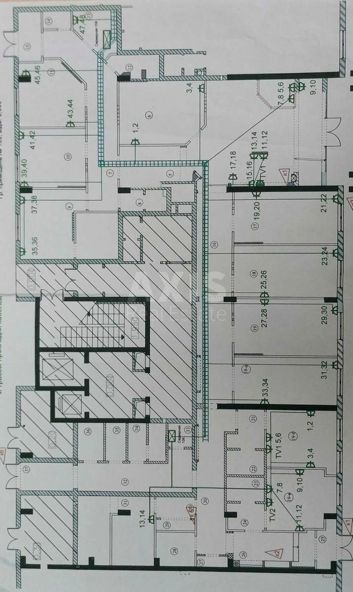
Объект сервиса ул. Сырецкая 32, 358м2

  • Подольский район ул. Сырецкая 32
  • Код: SC-216-227
  • Добавлено: 08.10.2025
  • Добавить в избранное
Тип рынка
Вторичный рынок
Улица
ул. Сырецкая 32
Призначення
Сервисный объект
Этаж
1 Этаж
Этажность
9 этажный дом
Общая площадь
358 м2
Общее состояние
С ремонтом
Цена:
31 419 646 грн.
750 000 USD
  • AXIS Real Estate
  • AXIS Real Estate
  • AXIS Real Estate
Описание объекта

Помещение свободного назначения. Рядом несколько густонаселенных массивов: Виноградарь, Минский массив, Оболонь, "Приорка", 8,6 км до Железнодорожного вокзала, 2,7 км до ближайшей станции м. Сырец, 10 км до центра города, находится в легкой доступности к крупным магистралям г. Киев (улица Елены Телиги, проспект Победы). Укомплектованы кабинеты для консультативных (диагностических) услуг, перевязочная, операционная, палаты, моечная, стерилизационная, архив со встроенными стеллажами, подсобные кабинеты для персонала, медицинского инвентаря, расходных материалов и прочее.

Дополнительная информация