Офис ул. Большая Васильковская 1/13, 269м2

  • Голосеевский район ул. Большая Васильковская 1/13
  • Код: RC-223-362
  • Добавлено: 12.04.2026
  • Добавить в избранное
Тип рынка
Вторичный рынок
Улица
ул. Большая Васильковская 1/13
Призначення
Офисное помещение
Этаж
3 Этаж
Этажность
6 этажный дом
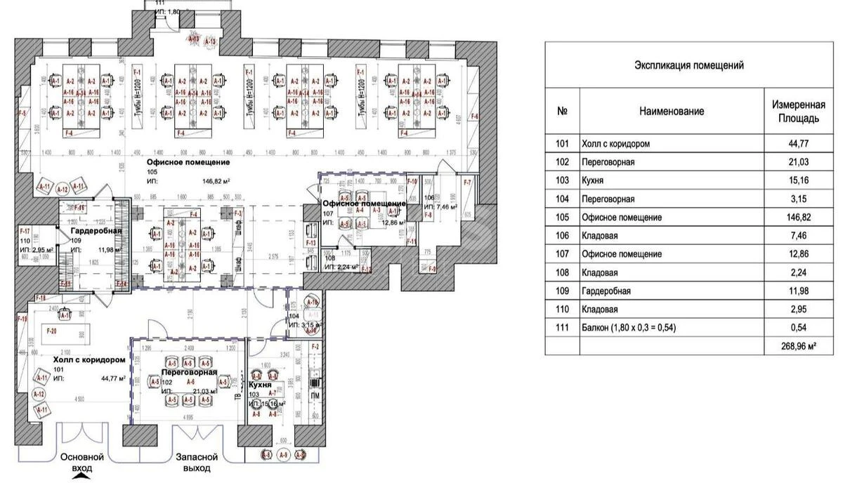
Общая площадь
269 м2
Общее состояние
С ремонтом
Цена:
233 672 грн.
5 380 USD
Описание объекта

Офисное помещение. Об офисе: отличное расположение на 3-м этаже бизнес-центра в непосредственной близости от центрального входа, рядом с лифтами, санузлами и парковкой; подключено ко всем необходимым коммуникациям; помещение на 100 % готово к эксплуатации; выполнен качественный и стильный ремонт.

Похожие предложения