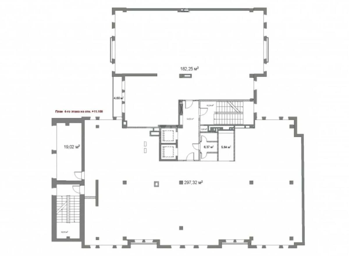
Офис ул. Спасская 5, 525м2

  • Подольский район ул. Спасская 5
  • Код: RC-220-203
  • Добавлено: 25.02.2026
  • Добавить в избранное
Тип рынка
Вторичный рынок
Улица
ул. Спасская 5
Призначення
Офисное помещение
Этаж
4 Этаж
Этажность
6 этажный дом
Общая площадь
525 м2
Общее состояние
С ремонтом
Цена:
568 440 грн.
13 125 USD
Описание объекта

Офисное помещение. Состояние: дизайнерский ремонт, презентабельная входная группа, охрана. Планировка: 3 зала open space, холл ресепшен, 3 отдельных кабинета, оборудованная кухня, 4 санузла, серверная комната, несколько небольших помещений. Система кондиционирования и вентиляции. Все необходимые коммуникации. Мощный генератор 160 кВт — стабильная работа во время отключений электроэнергии.

Похожие предложения